Magna Concursos

Foram encontradas 45 questões.

2526097 Ano: 2016
Disciplina: Física
Banca: STRIX
Orgão: FBD-BA
Provas:

Na investigação da causa de um acidente com uma composição ferroviária, os peritos concluíram que houve falha no dimensionamento de uma linha férrea que dilatou com o aumento da temperatura e se desprendeu dos dormentes fixadores.

Considerando-se uma linha férrea cujo coeficiente de dilatação linear é de 1,8.10–5 °C–1 e que, submetida a uma variação de temperatura de 20,0°C, aumentou o comprimento de 10,0mm, pode-se afirmar que o comprimento inicial da linha férrea, em metros, era de, aproximadamente,

 

Provas

Questão presente nas seguintes provas
2526096 Ano: 2016
Disciplina: Física
Banca: STRIX
Orgão: FBD-BA
Provas:

A Ciência do Direito se fundamenta por um conhecimento sistematizado passível de observação, verificação e falseabilidade dos fatos.

Considere-se um corpo abandonado da janela de um prédio que chegou ao chão com velocidade compatível com a de um carro a 90km/h.

A partir do conhecimento sistematizado sobre a queda dos corpos, desprezando-se a resistência do ar e se admitindo o módulo da aceleração da gravidade local é igual a 10m/s2, é correto afirmar:

 

Provas

Questão presente nas seguintes provas
2526095 Ano: 2016
Disciplina: Química
Banca: STRIX
Orgão: FBD-BA
Provas:

I. !$ C_8H_{18}(\ell) + {25\over 2}O_2(g) \rightarrow 8CO_2(g) + 9H_2O(\ell) !$ !$ \Delta Hº = -5470kJmol^{-1} !$

II. !$ C_2H_6O(\ell) + 3O_2(g) \rightarrow 2CO_2(g) + 3H_2O(\ell) !$ !$ \Delta Hº = -1368kJmol^{-1} !$

A escolha no uso da gasolina ou do etanol como combustível, além dos aspectos econômicos, está relacionada também aos impactos ambientais e à eficiência no aproveitamento da energia liberada na reação química. As equações termoquímicas I e II representam, respectivamente, os processos de combustão do octano, !$ C_8H_{18}(\ell) !$, – um dos componentes da gasolina – e do etanol, !$ C_2H_6O(\ell) !$.

Considerando-se essas equações associadas aos conhecimentos da Química, pode-se afirmar:

 

Provas

Questão presente nas seguintes provas
2526094 Ano: 2016
Disciplina: Química
Banca: STRIX
Orgão: FBD-BA
Provas:

Enunciado 2963242-1

O Brasil está entre os países que mais usam defensivos agrícolas para a produção de alimentos. Recentemente, análises de amostras das frutas e verduras comercializadas no país indicaram a presença de substâncias químicas, constituintes desses agrotóxicos, em concentrações acima do limite permitido, além de produtos não registrados ou inadequados para o tipo de alimento, apesar da série de requisitos exigidos pela Legislação Brasileira para o registro e a utilização de um defensivo agrícola. Especialistas alertam para os cuidados com o transporte, manuseio, armazenamento e aplicação desses produtos porque a maioria apresenta contaminantes ambientais e compostos que afetam a saúde do indivíduo, a exemplo, dentre outros, do glifosato – um herbicida sistêmico não seletivo, potencialmente cancerígeno que pode causar danos aos sistemas gastrointestinal, nervoso e respiratório.

Com base nessas informações e na estrutura química do glifosato, é correto afirmar:

 

Provas

Questão presente nas seguintes provas
2526093 Ano: 2016
Disciplina: Biologia
Banca: STRIX
Orgão: FBD-BA
Provas:

A adoção de uma alimentação equilibrada associada à prática de hábitos saudáveis pode prevenir ou amenizar o surgimento de diversas doenças.

Uma pessoa que deseja evitar a osteoporose deve

 

Provas

Questão presente nas seguintes provas
2526092 Ano: 2016
Disciplina: Biologia
Banca: STRIX
Orgão: FBD-BA
Provas:

A Comissão de Ciência, Tecnologia, Inovação, Comunicação e Informática, CCT, do Senado rejeitou, em outubro de 2015, o Projeto de Lei da Câmara, PLC, 34/2015, que retira a obrigação de estampar o símbolo indicando a presença de ingrediente transgênico nos rótulos de produtos alimentares. A matéria flexibiliza a regra para a rotulagem de alimentos que contêm organismos geneticamente modificados, OGM, como óleo de soja, fubá, entre outros. O projeto ainda será analisado pelas Comissões de Assuntos Sociais, CAS, e de Meio Ambiente, Defesa do Consumidor e Fiscalização e Controle, CMA.

FRANÇA, P. Projeto que desobriga indicação de ingrediente transgênico em alimentos é rejeitado pela CCT. Disponível em: <http://www12.senado.leg.br/noticias>. Acesso em: 11 abr. 2016. Adaptado.

Com relação aos organismos transgênicos, com base nos conhecimentos sobre o DNA recombinante, é correto afirmar:

 

Provas

Questão presente nas seguintes provas
2526091 Ano: 2016
Disciplina: Matemática
Banca: STRIX
Orgão: FBD-BA
Provas:

Enunciado 2963239-1

Na figura, o círculo e o segmento de reta representam, respectivamente, o carrossel de um parque de diversões, e parte de um muro de proteção, ambos vistos de cima. Sabe-se que o carrossel tem 8m de diâmetro, que a região sombreada o divide em setores circulares congruentes e que ele gira no sentido anti-horário.

Se a partir de um determinado instante em que uma pessoa P está a 3 metros de distância do muro, o carrossel faz uma rotação de 240º e para, então P estará a uma distância, em metros, do muro igual a

 

Provas

Questão presente nas seguintes provas
2526090 Ano: 2016
Disciplina: Matemática
Banca: STRIX
Orgão: FBD-BA
Provas:

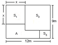
Enunciado 2963238-1

Para instalar um escritório de advocacia pretende-se dividir um espaço retangular de lados 12m e 9m, em três salas quadradas S1, S2, S3 e uma antessala A como indicado na figura.

Sabendo-se que a área de cada espaço depende da variação da medida x, pode-se afirmar que quando A tiver área máxima, a diferença entre as áreas da maior e da menor sala medirá, em m2,

 

Provas

Questão presente nas seguintes provas
2526089 Ano: 2016
Disciplina: Matemática
Banca: STRIX
Orgão: FBD-BA
Provas:

O termo inflação é usado para descrever a queda no poder aquisitivo do dinheiro. Por exemplo, se a taxa de inflação mensal é de 3%, então R$1000,00 hoje, valerá R$970,00 em um mês.

Considere-se que C = Co(1 – i)t é uma expressão através da qual se pode calcular o valor de um capital Co após t meses sob o efeito de uma inflação cuja taxa média, nesse período, é igual a i.

Admitindo-se que em um período de t meses, a uma a taxa média mensal de inflação igual a 10%, um capital perdeu !$ 3\over 4 !$ de seu poder aquisitivo, pode-se afirmar que o valor de t é igual a

 

Provas

Questão presente nas seguintes provas
2526088 Ano: 2016
Disciplina: Física
Banca: STRIX
Orgão: FBD-BA
Provas:

Enunciado 2963236-1

Um estudante H sai de sua casa, no instante t=0, para ir até a escola e gastará 24 minutos se fizer todo o percurso a pé. Seu irmão M sai do mesmo local, 10 minutos depois, e faz o mesmo percurso de bicicleta, a uma velocidade de 15km/h. Sabe-se que a escola fica a 2km de distância da casa e que M alcançará H em um instante t1 quando lhe dará carona até a escola.

Com base nessas informações, pode-se afirmar que H andou por um tempo t, em minutos, igual a

 

Provas

Questão presente nas seguintes provas