Foram encontradas 125 questões.
A NBR 5626:1998 estabelece exigências e recomendações relativas ao projeto, execução e manutenção da instalação predial de água fria. Sobre o assunto, analise as seguintes preposições:
I. No dimensionamento de tubulações da rede predial de água fria, é obrigatório levar em consideração a vazão máxima possível de todos os pontos de utilização da edificação, de modo que não haja redução temporária de vazão no sistema para não comprometer significativamente a satisfação do usuário.
II. A extremidade da tomada de água no reservatório deve ser elevada em relação ao fundo desse reservatório para evitar a entrada de resíduos eventualmente existentes na rede predial de distribuição. A altura dessa extremidade, em relação ao fundo do reservatório, deve ser relacionada com o diâmetro da tubulação de tomada e com a forma de limpeza que será adotada ao longo da vida do reservatório.
III. O dimensionamento do encanamento de recalque de uma estação elevatória é função da vazão do sistema e do número de horas de funcionamento da bomba por dia.
IV. No dimensionamento da bomba de uma estação elevatória, o cálculo da altura manométrica considera o acréscimo de pressão que ficará disponível pelo nível máximo de água do reservatório de sução na situação de bomba afogada.
V. O diâmetro do encanamento de sucção de uma estação elevatória é escolhido adotando-se, no mínimo, uma bitola comercial de tubo imediatamente acima do de recalque.
Quais estão INCORRETAS?
Provas
Você é engenheiro fiscal e recebeu o comunicado de concretagem em uma obra da Universidade. Assinale a alternativa que apresenta a correta conduta de fiscalização de acordo com as normas técnicas vigentes:
Provas
Acerca da NBR 8160 - Sistemas prediais de esgoto sanitário - Projeto e execução, é INCORRETO afirmar que:
Provas

Acerca da NBR 15200/2012: Projeto de estruturas em situação de incêndio, analise as seguintes proposições:
I. No Método Tabular para a verificação de estruturas em situação de incêndio, devem ser analisadas as dimensões mínimas dos elementos estruturais: larguras das vigas, espessuras das lajes, dimensões das seções transversais de pilares e, principalmente, a distância referida à superfície da armadura mais externa (em geral a face externa do estribo) e a face do concreto exposto ao fogo.
II. A resistência à compressão do concreto cresce a altas temperaturas e a resistência ao escoamento do aço decresce com o aumento da temperatura. Em situação de incêndio, a ruptura da estrutura ocorre por deformação excessiva da armadura sem haver o esmagamento do concreto. O tipo de ruptura é dúctil, também denominada de ruptura com aviso prévio.
III. Não é permitida a consideração do revestimento na determinação das dimensões mínimas da seção transversal de pilares e lajes lisas na aplicação do Método Tabular.
IV. O tempo requerido de resistência ao fogo é definido a partir das características da edificação e do seu uso.
Estão corretas:
Provas
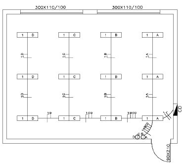
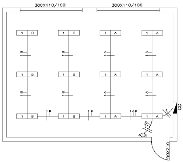
Considerando-se o projeto elétrico de uma sala de aula, que atenda aos requisitos do Regulamento Técnico da Qualidade para o Nível de Eficiência Energética de Edificações Comerciais, de Serviços e Públicas (RTQ-C), analise as plantas baixas a seguir e assinale a representação adequada.
Provas
A respeito dos materiais cerâmicos, analise as afirmativas:
I. Uma maior quantidade de água presente na argila facilita a homogeneização, aumenta a plasticidade e facilita a moldagem. Porém, além de uma maior retração, gasta-se mais energia para secagem e queima.
II. Os materiais cerâmicos são frágeis e não duráveis.
III. A qualidade de um artigo cerâmico depende, acima de tudo, da quantidade de vidro formado.
IV. Para o recebimento de tijolos em uma obra, deve ser feita uma inspeção visual geral, a medição de verificação das dimensões e ângulos e ensaios de compressão. Os tijolos também devem ser isentos de eflorescências, que caracterizam a presença de sais solúveis.
Com base nas afirmações acima expostas, assinale a alternativa certa.
Provas
Verifique os cortes abaixo e as seguintes afirmativas relacionadas ao que preconiza a Resolução Técnica CBMRS nº 11 – parte 01/2016 (Saídas de Emergência):

I. Os cortes representam os dutos de ventilação de uma escada enclausurada à prova de fumaça, com suas caixas enclausuradas por paredes resistentes a 240 minutos de fogo, no mínimo.
II. Os cortes representam os dutos de ventilação de uma escada enclausurada protegida, com suas caixas enclausuradas por paredes resistentes a 120 minutos de fogo, no mínimo.
III. Para esse tipo de escada, não é necessária antecâmara no pavimento de descarga.
IV. Os dutos de ventilação natural deverão formar um sistema integrado: o duto de entrada de ar e o duto de saída de gases e fumaça.
V. Os dutos de saída de gases e fumaça deverão elevar-se acima do eixo da abertura da antecâmara do último pavimento servido pelo duto, devendo seu topo situar-se, no mínimo, 3 metros acima de qualquer elemento construtivo existente sobre a cobertura.
VI. Os dutos de entrada de ar deverão ter abertura em sua extremidade inferior ou junto ao teto do 1º pavimento, possuindo acesso direto ao exterior, devendo esta abertura ser guarnecida por telas de arame ou venezianas metálicas, que não diminuam a área efetiva de ventilação, isto é, sua seção deverá ser aumentada para compensar a redução.
Quais afirmativas estão corretas?
Provas
A impermeabilização é o conjunto de operações e técnicas construtivas (serviços), composta por uma ou mais camadas, que tem por finalidade proteger as construções contra a ação deletéria de fluidos, de vapores e da umidade. O projeto executivo de impermeabilização NÃO deve atender aos seguintes detalhes construtivos:
Provas
Segundo Ambrozewicz (2012), a forma mais comum de combater a deterioração dos materiais é proteger as superfícies com a aplicação de uma película resistente, que impede a ação dos agentes de destruição ou corrosão. Essa película pode ser obtida pela aplicação de tintas, vernizes, lacas ou esmaltes. Nesse contexto, é correto afirmar:
I. As tintas sobre as alvenarias, além de contribuir para o efeito decorativo, são a solução para o problema de absorção de água e de umidade que geram rachaduras e o apodrecimento do material. As tintas adequadas para esse tipo de material são as da linha PVA, linha acrílica e linha esmalte.
II. A pintura sobre o reboco deve acontecer quando este estiver completamente curado, o que demora cerca de 28 dias. Caso contrário, poderá ocorrer fissuras e bolhas.
III. Pintura nova em reboco deve seguir a seguinte sequência: (i)raspar ou retocar; (ii)lixar; (iii)escovar; (iv)aplicar selador/base; (v)emassar; (vi)aparelhar; (vii)aplicar fundo; (viii)dar demãos.
IV. A sequência lógica para execução de uma pintura interna é (i)tetos, (ii)cimalhas, (iii)fundo (primer) esquadrias, (iv)paredes, (v)rodapés e (vi)acabamento das esquadrias
Com base nas afirmações acima expostas, assinale a alternativa certa.
Provas
Em conformidade com a legislação vigente para elaboração do Plano de Prevenção e Proteção Contra Incêndio, para o município de Rio Grande, é correto afirmar:
I. Segundo a NBR 13714/2000, nos sistemas de hidrantes e de mangotinhos para combate a incêndio, os pontos de tomada de água devem ser posicionados nas proximidades das portas externas e/ou acessos à área a ser protegida, a não mais de 6 metros.
II. De acordo com a Resolução Técnica CBMRS nº 14/2016, os extintores da classe A, com a classe de risco alto, devem apresentar uma distância máxima a ser percorrida de 15 metros.
III. Em concordância com a IT nº 07/2018-SP, o distanciamento horizontal por distância de separação entre fachadas opostas pode ser desconsiderado quando uma delas não possuir qualquer tipo de aberturas, e com resistência ao fogo de, no mínimo, 120 minutos.
IV. Conforme a IT nº 09/2018-SP, a compartimentação horizontal está dispensada nas áreas destinadas exclusivamente a estacionamento de veículos e depósitos.
V. Consoante a RT nº 11/2016-RS (Saídas de Emergência), o acesso principal deverá ter de 50% a 60% das unidades de passagens exigidas para a edificação e com a largura mínima de 1,10 metros, em qualquer caso.
Com base nas afirmações acima expostas, assinale a alternativa certa.
Provas
Caderno Container