Foram encontradas 50 questões.
De acordo com a figura apresentada abaixo é CORRETO afirmar que as indicações dos voltímetros VA e VB serão:

Provas
Provas
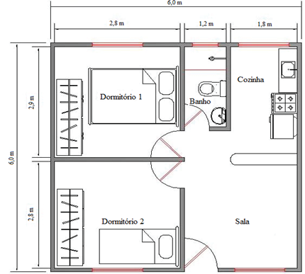
Na figura abaixo é mostrada uma planta baixa de um apartamento (as dimensões estão indicadas em metros). De acordo com o que é definido pela NBR 5410, no que se refere à previsão de cargas, a potência de iluminação e o número de tomadas de uso geral (TUGs) que devem ser previstas para o dormitório 1 são, RESPECTIVAMENTE:

Provas
O sistema de proteção contra descargas atmosféricas (SPDA) é destinado a proteger uma edificação ou estrutura contra os efeitos das mesmas. Sobre os métodos usualmente utilizados em projetos de proteção contra estas descargas, à luz da NBR 5419:2015, a qual trata do tema, é CORRETO afirmar que:
Provas
A figura abaixo mostra um esquema de aterramento TT, o qual é previsto pela NBR 5410:2004. Sobre este tipo de ligação é CORRETO afirmar que:

Provas
Na figura abaixo, é apresentado um digrama unifilar de uma rede de distribuição subterrânea do tipo spot network. Sobre este tipo de configuração e os elementos que a compõem são feitas as seguintes considerações:

I - Cada transformador é suprido por três circuitos que derivam da mesma subestação (SE).
II - A chave NP tem a finalidade de interromper o fluxo de potência no sentido inverso.
III - Este tipo de configuração possui baixa confiabilidade.
IV - Como o custo econômico deste tipo de configuração é muito elevado, seu uso só se justifica em áreas com grandes quantidades de cargas.
Assinale a alternativa CORRETA no que se refere às considerações acima:
Provas
Considerando-se que comprimento de uma linha de transmissão é determinante para o estabelecimento da disposição dos parâmetros que representam a mesma, assinale abaixo a alternativa CORRETA no que se refere a tais parâmetros.
Provas
A potência elétrica pode ser transmitida tanto em corrente contínua (CC) quanto em corrente alternada (CA). Assinale a alternativa CORRETA referente a estas duas possibilidades de transmissão
Provas
Na figura abaixo é mostrado o circuito terminal para alimentação de um chuveiro elétrico com potência de 3300 W e tensão de 220 V. Assinale a alternativa na qual consta, RESPECTIVAMENTE, o valor da corrente elétrica de projeto e o número de condutores carregados. Considere tanto o fator de potência quanto o rendimento do chuveiro como sendo iguais à unidade.

Provas
Sobre as condições mecânicas das linhas aéreas que compõem uma instalação elétrica de média tensão, é CORRETO afirmar que:
Provas
Caderno Container