Foram encontradas 980 questões.

Considerando a figura acima e o fato de que as versões mais recentes do AutoCAD permitem elaborar modelos 3D associados a bancos de dados e de informações utilizados como base para estudo, representação, avaliação e obtenção das vistas ortográficas, julgue os itens que se seguem.
Pode-se construir o apêndice horizontal do conector da figura mostrada tão-somente pela combinação de um cilindro vazado com um paralelepípedo em uma operação booleana de união.
Provas

Considerando a figura acima e o fato de que as versões mais recentes do AutoCAD permitem elaborar modelos 3D associados a bancos de dados e de informações utilizados como base para estudo, representação, avaliação e obtenção das vistas ortográficas, julgue os itens que se seguem.
Entre os muitos recursos auxiliares do estudo e da visualização existentes no modo 3D do AutoCAD, estão os comandos Section e Slice. Aquele gera uma seção plana em um sólido, enquanto este gera fatias longitudinais do sólido.
Provas

Considerando a figura acima e o fato de que as versões mais recentes do AutoCAD permitem elaborar modelos 3D associados a bancos de dados e de informações utilizados como base para estudo, representação, avaliação e obtenção das vistas ortográficas, julgue os itens que se seguem.
No AutoCAD, pode-se construir o conector da figura como modelo sólido, utilizando-se apenas dois tipos de sólidos primitivos — paralelepípedo e cilindro — combinados em operações booleanas de união e subtração.
Provas

Considerando a figura acima e o fato de que as versões mais recentes do AutoCAD permitem elaborar modelos 3D associados a bancos de dados e de informações utilizados como base para estudo, representação, avaliação e obtenção das vistas ortográficas, julgue os itens que se seguem.
Modelos sólidos, ao contrário de modelos de estrutura de arame, permitem obter dados como áreas de superfícies ou massa e volume, interseções entre duas ou mais superfícies, tensões etc., além de permitirem mapeamentos de texturas e acabamentos com realismo fotográfico.
Provas

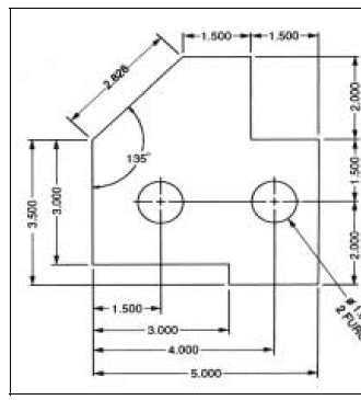
A respeito da figura acima e do software AutoCAD, utilizado para produzi-la, julgue os itens seguintes.
Para manter afastamentos iguais entre as linhas de cota, pode-se utilizar a opção parallel do comando Dim. Esse modo de dimensionamento tem como resultado linhas de cotagem paralelas e igualmente espaçadas, como nas cotas horizontais “1.500”, “3.000”, “4.000” e “5.000” na parte inferior da figura.
Provas

A respeito da figura acima e do software AutoCAD, utilizado para produzi-la, julgue os itens seguintes.
Para o dimensionamento dos furos, foram usadas as opções Circle e Dia do comando Dim.
Provas

A respeito da figura acima e do software AutoCAD, utilizado para produzi-la, julgue os itens seguintes.
A fim de seguir uma das orientações das normas brasileiras de desenho, foi empregado no desenho acima o dimensionamento linear alinhado do AutoCAD. Esse sistema faz que os textos das dimensões sejam escritos alinhados com a direção de cada linha de cota e as cotas verticais sejam escritas de tal forma que devem ser lidas a partir da direita.
Provas
Com referência à determinação do orçamento, etapa primordial no planejamento de uma obra, julgue os itens subseqüentes.
Um banheiro revestido de azulejos de 15 cm × 15 cm assentados com junta seca consome 90 azulejos por metro quadrado de parede.
Provas
Com referência à determinação do orçamento, etapa primordial no planejamento de uma obra, julgue os itens subseqüentes.
Em edifícios pavilhonares de um pavimento, o custo das fundações independe das condições geotécnicas do solo.
Provas
Com referência à determinação do orçamento, etapa primordial no planejamento de uma obra, julgue os itens subseqüentes.
A partir do 10.º pavimento, a influência do custo da estrutura sobre o orçamento total da obra é crescente à medida que se adicionam novos andares.
Provas
Caderno Container