Foram encontradas 50 questões.
Observe a figura a seguir.

Qual será a largura x da mesa de uma viga de ferro fundido, sendo a seção dada pela figura acima, de tal forma que a tensão de tração máxima seja um terço da tensão de compressão máxima?
Provas
É correto afirmar que uma peça está submetida ao esforço de tração ou compressão quando
Provas
Com relação aos processos que objetivam a edificação de um navio, é correto afirmar que
Provas
Considere uma barcaça, em forma de paralelepípedo, com 100,00 m de comprimento, 20,00 m de boca, 5,00 m de pontal e calado paralelo de 3,00 m (referente à linha de base), flutuando em água doce. Nela é embarcado, sobre o convés principal, um armamento de formato cúbico, com 2,00 m de comprimento e peso uniformemente distribuído de 50.000 kg. Se a posição vertical do centro de gravidade da barcaça antes da instalação do armamento era de 2,50 m, acima da linha de base, após a instalação do armamento, a posição do centro de gravidade da embarcação será de:
Provas
Correlacione as nomenclaturas do navio às suas respectivas definições, e assinale a opção correta.
NOMENCLATURAS
I - Roda de proa forjada
II - Roda de proa de chapa
III- Amura
IV - Cadaste
V - Almeida
DEFINIÇÕES
( ) É utilizada em navios modernos e, em geral, possui espessura maior que o chapeamento externo do casco.
( ) Reforço estrutural local situado na região da popa e que serve de suporte para o leme.
( ) Tem em geral uma secção retangular com dimensões ligeiramente menores que as da quilha, podendo ter na parte superior uma redução de 1/4 com relação às dimensões na altura da linha d'água.
( ) Parte curva do costado do navio, na popa, logo abaixo do painel, e que forma com ele um ângulo obtuso ou uma curvatura.
( ) O mesmo que bochecha, ou seja, parte curva do costado, de um e de outro bordo, junto à roda de proa.
Provas
Observe a figura a seguir.

Qual será o módulo de resistência (Z) necessário a uma viga em perfil "I", destinada a suportar uma carga distribuída de 0,60 t/m, como indicada na figura acima, sendo a tensão admissível !$ \sigma_{adm} !$ = 1100 kgf/cm2 ? Levar em consideração somente as tensões normais !$ \sigma_x !$ e desprezar o peso próprio da viga.
Provas
Assinale a opção em que todos os itens compõem o peso morto ou porte bruto (DEADWEIGHT) de um navio.
Provas
Em relação à proa de uma embarcação, assinale a opção INCORRETA.
Provas
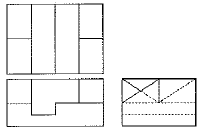
Observe a peça em perspectiva a seguir.

Qual é o grupo de vistas que melhor representa a figura acima.
Provas
O material fundido na ponta de uma vareta, que é revestida com fundentes de várias composições e espessuras, preenche a poça de fusão, enquanto o arco mantém o material base em fusão para assegurar uma união perfeita. Essa soldagem pode ser feita por corrente alternada ou contínua, com polaridade negativa ou positiva. O processo de soldagem que a afirmativa acima se refere é denominado
Provas
Caderno Container