Foram encontradas 60 questões.
Provas
Uma grande sala retangular, cujas medidas dos lados, em metros, são iguais a x e 0,75 x, tem área de 108 m². Parte dessa sala (região Z) foi isolada para a montagem de bancadas para experimentos laboratoriais, restando uma área quadrada de lado igual a y metros, conforme mostra a figura.

A área da região Z é, em m², igual a
Provas
Uma professora corrigiu um total de 70 provas de duas classes do 9o
ano. Sendo x o número de provas cujas
notas foram iguais ou acima da média, e y o número de
provas cujas notas foram abaixo da média, e sabendo-se
que a terça parte de x somada à quarta parte de y é igual
a 21, é correto afirmar que a razão
é igual a
Provas
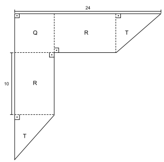
Um pátio escolar é dividido em uma região quadrada (Q), com área de 36 m², duas regiões retangulares congruentes (R) e duas regiões triangulares congruentes (T), conforme mostra a figura, cujas dimensões estão indicadas em metros.

O perímetro desse pátio é, em metros, igual a
Provas
Uma prova de Matemática tinha apenas 4 questões objetivas. O gráfico mostra a distribuição percentual do número de questões respondidas corretamente por aluno.

De acordo com os dados do gráfico, é correto afirmar que a média aritmética do número de questões que cada aluno respondeu corretamente foi igual a
Provas
Ensino laico
Levar o ensino religioso a escolas federais, estaduais e municipais, mesmo com matrícula facultativa, mostrou-se um erro do constituinte. Não se trata aqui de contestar a importância da fé para indivíduos ou para a sociedade; a questão é que as igrejas nunca precisaram do púlpito escolar para dar publicidade a suas doutrinas.
Sendo assim, resta pouco sentido em consumir tempo e recursos escassos da educação do país com algo que outras entidades já fazem com eficiência.
A introdução da disciplina no currículo criou a dificuldade de conciliá-la com o princípio da laicidade do Estado, segundo o qual este deve manter posição de neutralidade plena em relação a todos os credos – e também à descrença de parte dos cidadãos.
Ora, dado que tanto o ensino religioso quanto a laicidade são mandamentos da Constituição, o modo menos canhestro de harmonizá-los é sacrificando qualquer caráter confessional, isto é, toda associação direta do poder público com esta ou aquela fé.
Na impossibilidade de proporcionar aulas associadas a todas as preferências, afigura-se mais adequado abraçar um modelo em que se tenta abordar o fenômeno religioso no que ele tem de universal, explicando o surgimento das principais doutrinas. Às próprias igrejas caberia levar ensinamentos mais dogmáticos a seus fiéis.
Espera-se, assim, que a maior parte dos ministros que ainda não votaram o julgamento de ação direta de inconstitucionalidade que contesta o ensino religioso de caráter confessional em escolas públicas acompanhe o relator, para o qual o tratamento da disciplina na rede pública precisa ser necessariamente não confessional, isto é, desvinculado de crenças específicas.
(Editorial. Folha de S.Paulo, 20.09.2017. Adaptado)
Não se trata de opor-se___________ importância da fé para indivíduos ou para a sociedade; mas o fato é que as igrejas nunca precisaram do púlpito escolar para dar publicidade________________ .
De acordo com a norma-padrão, as lacunas do enunciado devem ser preenchidas, correta e respectivamente, com
Provas
Ensino laico
Levar o ensino religioso a escolas federais, estaduais e municipais, mesmo com matrícula facultativa, mostrou-se um erro do constituinte. Não se trata aqui de contestar a importância da fé para indivíduos ou para a sociedade; a questão é que as igrejas nunca precisaram do púlpito escolar para dar publicidade a suas doutrinas.
Sendo assim, resta pouco sentido em consumir tempo e recursos escassos da educação do país com algo que outras entidades já fazem com eficiência.
A introdução da disciplina no currículo criou a dificuldade de conciliá-la com o princípio da laicidade do Estado, segundo o qual este deve manter posição de neutralidade plena em relação a todos os credos – e também à descrença de parte dos cidadãos.
Ora, dado que tanto o ensino religioso quanto a laicidade são mandamentos da Constituição, o modo menos canhestro de harmonizá-los é sacrificando qualquer caráter confessional, isto é, toda associação direta do poder público com esta ou aquela fé.
Na impossibilidade de proporcionar aulas associadas a todas as preferências, afigura-se mais adequado abraçar um modelo em que se tenta abordar o fenômeno religioso no que ele tem de universal, explicando o surgimento das principais doutrinas. Às próprias igrejas caberia levar ensinamentos mais dogmáticos a seus fiéis.
Espera-se, assim, que a maior parte dos ministros que ainda não votaram o julgamento de ação direta de inconstitucionalidade que contesta o ensino religioso de caráter confessional em escolas públicas acompanhe o relator, para o qual o tratamento da disciplina na rede pública precisa ser necessariamente não confessional, isto é, desvinculado de crenças específicas.
(Editorial. Folha de S.Paulo, 20.09.2017. Adaptado)
Provas
Ensino laico
Levar o ensino religioso a escolas federais, estaduais e municipais, mesmo com matrícula facultativa, mostrou-se um erro do constituinte. Não se trata aqui de contestar a importância da fé para indivíduos ou para a sociedade; a questão é que as igrejas nunca precisaram do púlpito escolar para dar publicidade a suas doutrinas.
Sendo assim, resta pouco sentido em consumir tempo e recursos escassos da educação do país com algo que outras entidades já fazem com eficiência.
A introdução da disciplina no currículo criou a dificuldade de conciliá-la com o princípio da laicidade do Estado, segundo o qual este deve manter posição de neutralidade plena em relação a todos os credos – e também à descrença de parte dos cidadãos.
Ora, dado que tanto o ensino religioso quanto a laicidade são mandamentos da Constituição, o modo menos canhestro de harmonizá-los é sacrificando qualquer caráter confessional, isto é, toda associação direta do poder público com esta ou aquela fé.
Na impossibilidade de proporcionar aulas associadas a todas as preferências, afigura-se mais adequado abraçar um modelo em que se tenta abordar o fenômeno religioso no que ele tem de universal, explicando o surgimento das principais doutrinas. Às próprias igrejas caberia levar ensinamentos mais dogmáticos a seus fiéis.
Espera-se, assim, que a maior parte dos ministros que ainda não votaram o julgamento de ação direta de inconstitucionalidade que contesta o ensino religioso de caráter confessional em escolas públicas acompanhe o relator, para o qual o tratamento da disciplina na rede pública precisa ser necessariamente não confessional, isto é, desvinculado de crenças específicas.
(Editorial. Folha de S.Paulo, 20.09.2017. Adaptado)
Provas
Ao deparar-me com o vendaval poético das crianças de 1o grau, na época em que servi de animadora dos Ateliês de Literatura no Colégio Internacional de Curitiba, fiquei entre espantada e admirada com a porosidade infantil diante do universo das palavras e do contato com o universo em geral. Não houve nenhum “abracadabra” mágico que servisse para provocar a expressão poética infantil. Se tive alguma contribuição nesta vivência, foi a de percebê-las curiosas, criadoras, articuladoras e poetas. O privilégio de poder sintonizar- -me poeticamente com as crianças e poder fruir momentos inesquecíveis de criação, percepção e descoberta no campo da poesia devo, sem dúvida alguma, à educação poética recebida nos primeiros anos de vida, no ambiente familiar.
Na sala de aula, tudo era motivo para o acontecimento poético surpreender-me: “(...) cai uma folha; algo passa voando / o que olham os olhos criado seja / e a alma do ouvinte tremendo esteja (...)”. A voz do poeta [Vicente Huidobro] parecia constatar comigo a atmosfera de criação e fruição poética em sala de aula. E, para que isso aconteça, apenas é necessário permitir que criança e palavra re-unam-se, na sala de aula, como era uma vez. E que o professor, mediador desse encontro, seja capaz de rememorar sua própria infância, que não é tão diferente da infância de poetas e escritores. O fascínio pelas palavras afeta indistintamente a todos os seres humanos.
O espaço para o exercício lúdico prestava-se para a intervenção espontânea e imprevisível dos alunos. Numa oportunidade, diante do poema de Sidônio Muralha – “Quando um tatu / encontra outro tatu / tratam-se por tu...” –, um dos alunos recriou: “Quando um boi encontra outro boi, tratam-se por ‘oi’”.
(Glória Kirinus. Criança e poesia na Pedagogia Freinet. Adaptado)
Provas
Ao deparar-me com o vendaval poético das crianças de 1o grau, na época em que servi de animadora dos Ateliês de Literatura no Colégio Internacional de Curitiba, fiquei entre espantada e admirada com a porosidade infantil diante do universo das palavras e do contato com o universo em geral. Não houve nenhum “abracadabra” mágico que servisse para provocar a expressão poética infantil. Se tive alguma contribuição nesta vivência, foi a de percebê-las curiosas, criadoras, articuladoras e poetas. O privilégio de poder sintonizar- -me poeticamente com as crianças e poder fruir momentos inesquecíveis de criação, percepção e descoberta no campo da poesia devo, sem dúvida alguma, à educação poética recebida nos primeiros anos de vida, no ambiente familiar.
Na sala de aula, tudo era motivo para o acontecimento poético surpreender-me: “(...) cai uma folha; algo passa voando / o que olham os olhos criado seja / e a alma do ouvinte tremendo esteja (...)”. A voz do poeta [Vicente Huidobro] parecia constatar comigo a atmosfera de criação e fruição poética em sala de aula. E, para que isso aconteça, apenas é necessário permitir que criança e palavra re-unam-se, na sala de aula, como era uma vez. E que o professor, mediador desse encontro, seja capaz de rememorar sua própria infância, que não é tão diferente da infância de poetas e escritores. O fascínio pelas palavras afeta indistintamente a todos os seres humanos.
O espaço para o exercício lúdico prestava-se para a intervenção espontânea e imprevisível dos alunos. Numa oportunidade, diante do poema de Sidônio Muralha – “Quando um tatu / encontra outro tatu / tratam-se por tu...” –, um dos alunos recriou: “Quando um boi encontra outro boi, tratam-se por ‘oi’”.
(Glória Kirinus. Criança e poesia na Pedagogia Freinet. Adaptado)
Considere a passagem:
Numa oportunidade, diante do poema de Sidônio Muralha – “Quando um tatu / encontra outro tatu / tratam-se por tu...” –, um dos alunos recriou: “Quando um boi encontra outro boi, tratam-se por ‘oi’”.
Sobre a passagem, é correto afirmar que
Provas
Caderno Container