Foram encontradas 2.633 questões.
Disciplina: Direito Tributário
Banca: CESPE / CEBRASPE
Orgão: Pref. Rio Branco-AC
Enquanto o Código Tributário Nacional (CTN) define o fato gerador, a base de cálculo e o contribuinte do IPTU, os municípios têm autonomia para a instituição de isenções e alíquotas. Acerca desse tema, julgue os itens que se seguem.
O IPTU tem como fato gerador a propriedade, o domínio útil ou a posse de bem imóvel localizado na zona urbana do município.
Provas
Disciplina: Direito Tributário
Banca: CESPE / CEBRASPE
Orgão: Pref. Rio Branco-AC
Enquanto o Código Tributário Nacional (CTN) define o fato gerador, a base de cálculo e o contribuinte do IPTU, os municípios têm autonomia para a instituição de isenções e alíquotas. Acerca desse tema, julgue os itens que se seguem.
Valor venal é o valor estimado de avaliação do imóvel para compra e venda à vista, de acordo com a realidade do mercado imobiliário, considerando a sua localização e características físicas.
Provas
Disciplina: Direito Tributário
Banca: CESPE / CEBRASPE
Orgão: Pref. Rio Branco-AC
Enquanto o Código Tributário Nacional (CTN) define o fato gerador, a base de cálculo e o contribuinte do IPTU, os municípios têm autonomia para a instituição de isenções e alíquotas. Acerca desse tema, julgue os itens que se seguem.
A base de cálculo do IPTU de um edifício de apartamentos é o valor venal do terreno.
Provas
Disciplina: Direito Tributário
Banca: CESPE / CEBRASPE
Orgão: Pref. Rio Branco-AC
Enquanto o Código Tributário Nacional (CTN) define o fato gerador, a base de cálculo e o contribuinte do IPTU, os municípios têm autonomia para a instituição de isenções e alíquotas. Acerca desse tema, julgue os itens que se seguem.
O IPTU é um imposto estadual que incide sobre a propriedade predial e territorial urbana.
Provas
Disciplina: Serviços Gerais
Banca: CESPE / CEBRASPE
Orgão: Pref. Rio Branco-AC

Com base na figura acima, julgue os próximos itens.
Na figura acima, "14" e "16" são os novos pontos medidos, "31" é a estação conhecida, e "31-32", a direção de referência.
Provas
Disciplina: Serviços Gerais
Banca: CESPE / CEBRASPE
Orgão: Pref. Rio Branco-AC
Com relação aos métodos clássicos de levantamento para fins cadastrais, julgue os itens seguintes.
O método ortogonal deve ser usado principalmente em levantamentos urbanos, em que existe um grande número de pontos a medir ao longo das linhas de referência de medição ou de linhas auxiliares de medição.
Provas
Disciplina: Serviços Gerais
Banca: CESPE / CEBRASPE
Orgão: Pref. Rio Branco-AC
Considerando que as medições são passíveis de serem afetadas por erros de observação, julgue os itens subseqüentes.
Os erros sistemáticos podem ocorrer devido ao deslocamento do zero da escala
Provas
Disciplina: Serviços Gerais
Banca: CESPE / CEBRASPE
Orgão: Pref. Rio Branco-AC

Considerando os desenhos acima, julgue os itens a seguir.
O desenho 4 corresponde a uma porta de vaivém
Provas
Disciplina: Serviços Gerais
Banca: CESPE / CEBRASPE
Orgão: Pref. Rio Branco-AC

Considerando os desenhos acima, julgue os itens a seguir.
Dois dos desenhos correspondem a janelas.
Provas
Disciplina: Serviços Gerais
Banca: CESPE / CEBRASPE
Orgão: Pref. Rio Branco-AC

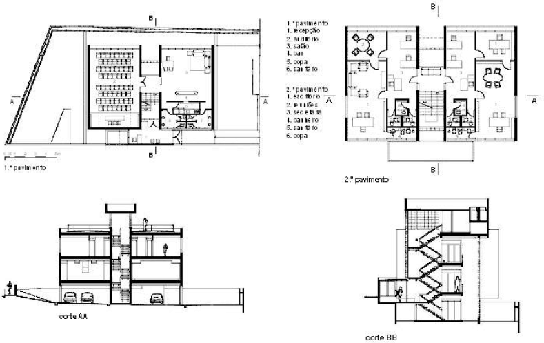
Acerca dos desenhos acima, que correspondem ao projeto do Espaço Pacaembu (1996), de autoria do arquiteto Marcos Acayaba, julgue os itens que se seguem.
O edifício possui 4 pavimentos além da garagem.
Provas
Caderno Container