Magna Concursos

Foram encontradas 1.093 questões.

3308214 Ano: 2024
Disciplina: Engenharia Mecânica
Banca: FGV
Orgão: TCE-PA

Uma chapa fina de aço, com módulo de elasticidade longitudinal igual a 200GPa e coeficiente de Poisson de 0,3, é solicitada como indicado na figura a seguir.

Enunciado 3709403-1

Considerando as deformações de tração positivas e as de compressão negativas, as deformações nas direções x, y e z (perpendicular a chapa), admitindo estado plano de tensões, valem, respectivamente,

 

Provas

Questão presente nas seguintes provas
3308213 Ano: 2024
Disciplina: Engenharia Civil
Banca: FGV
Orgão: TCE-PA

Atenção: o enunciado a seguir refere-se às duas próximas questões.

A figura a seguir apresenta uma viga biapoiada com um trecho em balanço.

Enunciado 3709400-1

Considerando que a viga possui seção transversal quadrada de lado 10cm e a carga q é igual a 5kN/m, a máxima tensão normal nessa viga vale

 

Provas

Questão presente nas seguintes provas
3308212 Ano: 2024
Disciplina: Engenharia Civil
Banca: FGV
Orgão: TCE-PA

Atenção: o enunciado a seguir refere-se às duas próximas questões.

A figura a seguir apresenta uma viga biapoiada com um trecho em balanço.

Enunciado 3709399-1

O valor da carga q para que, em módulo, o momento fletor no ponto médio do vão AB seja igual ao momento fletor no ponto B é

 

Provas

Questão presente nas seguintes provas
3308211 Ano: 2024
Disciplina: Engenharia Civil
Banca: FGV
Orgão: TCE-PA

A figura a seguir apresenta uma viga biengastada sob a ação de uma carga concentrada no meio do seu vão.

Enunciado 3709394-1

O máximo momento fletor nessa viga vale

 

Provas

Questão presente nas seguintes provas
3308210 Ano: 2024
Disciplina: Engenharia Mecânica
Banca: FGV
Orgão: TCE-PA

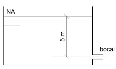
A figura a seguir apresenta um reservatório de água com um pequeno bocal, com diâmetro de 10cm, na região inferior.

Enunciado 3709392-1

Sabe-se, ainda, que o coeficiente de descarga por nesse bocal vale 0,80.

Desse modo, admitindo a aceleração da gravidade igual a 10m/s2 e \( \pi \) = 3, a perda de carga nesse bocal vale

 

Provas

Questão presente nas seguintes provas
3308209 Ano: 2024
Disciplina: Engenharia Mecânica
Banca: FGV
Orgão: TCE-PA

Uma tubulação escoa água de um ponto A para um ponto B, conforme indicado na figura a seguir.

Enunciado 3709389-1

Sabe-se que a diferença de pressão entre o ponto B e o ponto A é de 0,1kgf/cm2 e o diâmetro da tubulação em A é o triplo do diâmetro da tubulação em B.

Nessa condição, a velocidade do fluido em B é de

 

Provas

Questão presente nas seguintes provas
3308208 Ano: 2024
Disciplina: Engenharia Mecânica
Banca: FGV
Orgão: TCE-PA

Em um laboratório, um engenheiro estuda a resistência que uma parede sólida e rugosa exerce à passagem de um fluido. Para tanto, o engenheiro expressa a resistência R por intermédio da seguinte equação:

\( R \) = \( C \)\( \rho \)\( a \)1\( v \)\( a \)2\( e \)\( a \)3

onde \( \rho \) é a massa específica do fluido, \( v \) é a velocidade relativa do fluido em relação à parede e \( e \) tem dimensão de comprimento (linear) que caracteriza a rugosidade da superfície. Além disso, na equação proposta, \( C \), a1, a2 e a3 são constantes adimensionais.

Sabendo que a resistência R deve ser expressa em unidade de força por (dividido) área, os expoentes a1, a2 e a3 devem valer, respectivamente,

 

Provas

Questão presente nas seguintes provas
3308207 Ano: 2024
Disciplina: Engenharia Civil
Banca: FGV
Orgão: TCE-PA

Os produtos cerâmicos são bastante utilizados em engenharia civil. Em seu processo de construção, estes produtos são obtidos a partir da secagem e recozimento de materiais constituídos de

 

Provas

Questão presente nas seguintes provas
3308206 Ano: 2024
Disciplina: Engenharia Civil
Banca: FGV
Orgão: TCE-PA

Um pavimento de estrada é classificado como sendo flexível.

Desta forma, pode-se dizer que duas das propriedades físicas desse pavimento são

 

Provas

Questão presente nas seguintes provas
3308205 Ano: 2024
Disciplina: Engenharia Civil
Banca: FGV
Orgão: TCE-PA

A fundação de uma obra de engenharia foi realizada através de estacas, cravadas por meio de golpes de pilão.

Durante este processo de cravação, a parcela elástica do deslocamento máximo de uma seção da estaca é denominada

 

Provas

Questão presente nas seguintes provas