Foram encontradas 252 questões.
Um canal retangular de concreto com 4m de largura e profundidade normal de 0,5m possui declividade de 0,01m/m. Considerando-se o coeficiente de rugosidade do concreto n=0,013, pode- se afirmar que a vazão desse canal é de:
Provas
Questão presente nas seguintes provas

Um apartamento situado no sexto andar possui dois circuitos, conforme indica o desenho que segue.

Considerando-se que os condutores foram dimensionados pelo critério da queda de tensão admissível e estabelecendo-se uma queda de 2%, pode-se afirmar que as seções dos fios dos circuitos 1 e 2 são, respectivamente:
Provas
Questão presente nas seguintes provas
As estruturas que permitem a captação das águas superficiais das vias públicas e proporcionam o encaminhamento dessas águas às galerias são denominadas:
Provas
Questão presente nas seguintes provas
Com base na norma regulamentadora no 08 – Edificações, são condições técnicas mínimas a serem observadas nas partes externas das edificações:
Provas
Questão presente nas seguintes provas
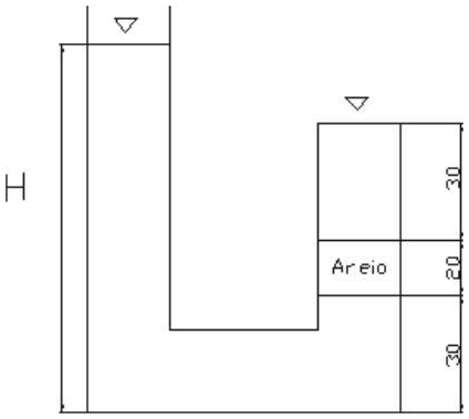
A condição “movediça” em areias é um fenômeno importante, pois pode levar à ruptura de fundo de uma construção. Esse fenômeno ocorre quando o gradiente hidráulico é maior que o gradiente hidráulico crítico.
Na figura que segue, está posicionada uma amostra de areia.

Para a situação representada na figura, dado um gradiente hidráulico crítico de 0,8, o valor de H em que a amostra de areia ficará na condição “movediça” terá de ser maior que:
Na figura que segue, está posicionada uma amostra de areia.

Para a situação representada na figura, dado um gradiente hidráulico crítico de 0,8, o valor de H em que a amostra de areia ficará na condição “movediça” terá de ser maior que:
Provas
Questão presente nas seguintes provas
No cálculo de uma escada confortável, o degrau deve ter um espelho de 17cm e um piso de 28cm. Para se descobrirem os valores de espelho e piso ideais, a fórmula de Blondel encontra um resultado médio, usando os seguintes parâmetros:
Provas
Questão presente nas seguintes provas
Durante a realização do ensaio de penetração dinâmica (Standard Penetration Test - SPT), a cravação do amostrador padrão é feita por um peso de 65 kg que cai de 75 cm de altura. Anota-se o número de golpes necessários para cravar os 45 cm do amostrador padrão, divididos em três conjuntos de golpes para cada 15 cm. O índice de resistência à penetração (N), observado no boletim de sondagem, representa:
Provas
Questão presente nas seguintes provas
Para se evitar a penetração de água através de juntas de uma edificação, deve-se considerar para rufos em:
Provas
Questão presente nas seguintes provas
De acordo com a norma que define as “Condições e Meio Ambiente de Trabalho na Indústria da Construção”, é permitido:
Provas
Questão presente nas seguintes provas
Os detectores são dispositivos pontuais que atuam em determinadas áreas de abrangência. Quanto à detecção de fumaça, é correto dizer que:
Provas
Questão presente nas seguintes provas
Cadernos
Caderno Container