Foram encontradas 60 questões.
- UniãoExecutivoDecreto 1.171/1994: Código de Ética do Servidor Público Civil do Poder Executivo Federal
Sobre o Decreto nº 1.171/1994, que aprova o Código
de Ética Profissional do Servidor Público Civil do Poder Executivo Federal, analise as seguintes assertivas:
I - o uso do cargo ou função, facilidades, amizades,
tempo, posição e influências, para obter qualquer favorecimento, para si ou para outrem;
II - permitir que perseguições, simpatias, antipatias,
caprichos, paixões ou interesses de ordem pessoal
interfiram no trato com o público, com os jurisdicionados administrativos ou com colegas hierarquicamente superiores ou inferiores;
III - participar dos movimentos e estudos que se relacionem com a melhoria do exercício de suas funções,
tendo por escopo a realização do bem comum;
IV - ser, em função de seu espírito de solidariedade,
conivente com erro ou infração a este Código de Ética
ou ao Código de Ética de sua profissão;
V - desempenhar, a tempo, as atribuições do cargo,
função ou emprego público de que seja titular.
Assinale a opção que assinala a quantidade de assertivas que contém VEDAÇÕES SERVIDOR PÚBLICO.
Provas
Questão presente nas seguintes provas
- Desenho Técnico na Engenharia Civil
- Estruturas
- Resistência dos Materiais e Análise EstruturalEstruturas de Concreto
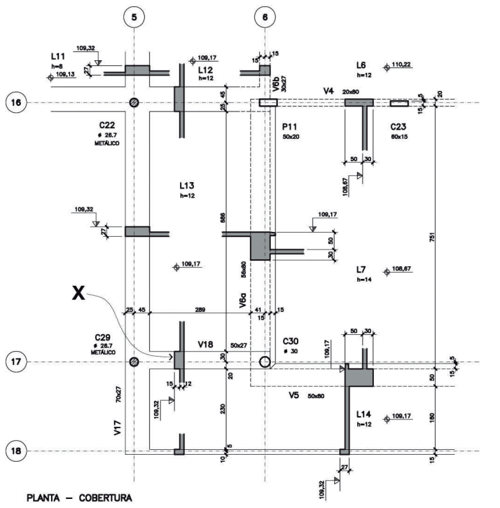
Nos projetos de estruturas, a planta de formas deve mostrar a posição dos elementos estruturais, identificá-los por nome ou número e indicar suas dimensões.
O elemento estrutural assinalado com o X na planta de forma acima é:
O elemento estrutural assinalado com o X na planta de forma acima é:
Provas
Questão presente nas seguintes provas
Considerando o levantamento topográfico do desenho abaixo:

O perfil do terreno representado pelo corte AB é:
Provas
Questão presente nas seguintes provas
Considere a Figura abaixo.
Ela corresponde o desenho topográfico de:

Provas
Questão presente nas seguintes provas
Assinale a alternativa correta. A definição: “São soluções de gomas ou resinas, naturais ou sintéticas, em um veículo; solução estas que são convertidas em uma película útil transparente ou translúcida, após a aplicação em camadas finas”, define os/as:
Provas
Questão presente nas seguintes provas
Assinale a alternativa correta. Nas propriedades dos corpos sólidos a definição: “É a capacidade que tem os corpos de se reduzirem a fios sem se romperem”, define o/a:
Provas
Questão presente nas seguintes provas
São considerados bases flexíveis para pavimentos:
I. Macadame de Cimento
II. Macadame Hidráulico
III. Macadame Betuminoso
IV. Solo-cimento
V. Solo estabilizado
Assinale a alternativa correta:
Provas
Questão presente nas seguintes provas
Nas estruturas metálicas os conectares são instalados em furos feitos nas chapas. A execução desses furos é onerosa, tornando-se necessária a padronização de dimensões e espaçamentos, a fim de permitir furações múltiplas nas fábricas. O furo-padrão para parafusos comuns deverá ter uma folga em relação ao diâmetro nominal do parafuso; essa tolerância é necessária para permitir a montagem das peças. O processo mais econômico de furar é o puncionamento no diâmetro definitivo, o que pode ser feito para espessura t de chapa até o diâmetro nominal do conector acrescido de:
Provas
Questão presente nas seguintes provas
Assinale a alternativa correta. Nas propriedades dos corpos sólidos a definição: “É a perda de qualidades ou de dimensões com o uso contínuo”, define o/a:
Provas
Questão presente nas seguintes provas
As alternativas, a seguir, estão corretas, EXCETO:
Provas
Questão presente nas seguintes provas
Cadernos
Caderno Container