Foram encontradas 276 questões.
Um solo pode ser considerado como um conjunto formado por partículas de diversos tamanhos, e de acordo com seu tamanho podem ser classificadas. Para uma amostra que possui diâmetro máximo de 10mm, o ensaio de análise granulométrico obteve uma retenção na peneira número 4 de abertura 4,8mm, essas partículas retidas podem ser classificadas como:
Provas
No canteiro de obra, existem os equipamentos de transporte, os quais auxiliam os trabalhadores quanto ao transporte vertical ou horizontal na obra. Qual destes equipamentos abaixo não é um equipamento de transporte horizontal?
Provas
Qual equipamento listado abaixo é utilizado para o preparo da argamassa para assentamento e revestimento de paredes e tetos, conforme a NBR 13276 – Preparo da mistura e determinação do índice de consistência:
Provas
Marque a opção que define o item 3 da estrutura de telhado abaixo:

Provas
Considerando o Slump Test (teste para verificação da qualidade do concreto), assinale a sentença que completa a sentença corretamente:
“Antes de fazer o lançamento do concreto, precisamos verificar o abatimento, para evitar segregação do concreto, a execução de ensaio slump test é feita com o cone de ”.
Provas
A argila é um solo que apresenta características marcantes de plasticidade. Quando úmido, molda-se facilmente e quando seco constitui-se de torrões dificilmente desagradáveis por pressão dos dedos. Quanto à plasticidade podem ser subdivididas em gordas e magras. Quanto à consistência, assinale a alternativa que possui as afirmativas corretas em que as argilas podem ser subdivididas:
I. Muito moles.
II. Moles.
III. Médias.
IV. Rijas.
V. Duras.
Provas
Para construir utilizando a alvenaria estrutural, podem ser utilizados os blocos de concreto e blocos cerâmicos. Na NBR 15270-2 “Componentes Cerâmicos - Blocos cerâmicos para alvenaria estrutural – Terminologia e requisitos” são apresentados alguns exemplos de blocos que podem ser utilizados na alvenaria estrutural. Qual destes blocos abaixo não é indicado para utilização em alvenaria estrutural?
Provas
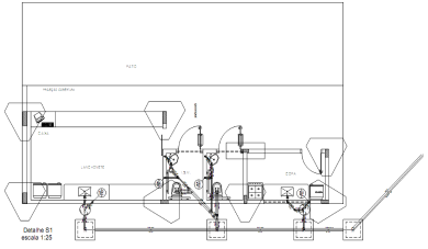
Observe a Figura 3 a seguir, e as conseguintes afirmativas

Figura 3 – Detalhe S1 Acervo UFGD
I. No detalhe não há presença de caixa de gordura
II. O detalhe representa o esquema hidráulico da edificação
III. O detalhe está compatibilizado com a fundação da edificação
IV. Há quatro ramais de ventilação
Considerando as afirmativas, assinale a alternativa correta:
Provas
De acordo com a Figura abaixo, temos as seguintes afirmativas:

Figura 2- Planta de forma Acervo UFGD
I. Todos os pilares têm a mesma seção transversal.
II. Existem 10 pilares e 11 lajes.
III. Todas as lajes são maciças.
Considerando as afirmativas, assinale a alternativa correta:
Provas
Sobre a representação gráfica de projetos de arquitetura é incorreto afirmar que:
Provas
Caderno Container