Foram encontradas 170 questões.
Texto para a questão abaixo.

Disponível em: http://fotografia.folha.uol.com.br/galerias/46834-charges-outubro-de-2016#foto-643694
Levando-se em conta os contextos de enunciação apresentados na charge, pode-se declarar que:
Provas
Questão presente nas seguintes provas
A documentação arquitetônica envolve uma rigorosa e detalhada representação gráfica das características geométricas e físicas de uma edificação ou espaço urbano e, para tal, existem diferentes métodos de captura de dados. Nos métodos diretos é necessário o contato físico do operador com o objeto a ser documentado e nos métodos indiretos a medição é realizada a determinada distância. Ainda, são diversas as técnicas de levantamento, que permitem a documentação tanto de superfícies externas como de informações ocultas. Sobre este tema, é CORRETO afirmar que:
Provas
Questão presente nas seguintes provas
Texto para a questão abaixo.
brasil
O Zé Pereira chegou de caravela
E preguntou pro guarani da mata virgem
– Sois cristão?
– Não. Sou bravo, sou forte, sou filho da Morte
Teterê tetê Quizá Quizá Quecê!
Lá longe a onça resmungava Uu! ua! uu!
O negro zonzo saído da fornalha
Tomou a palavra e respondeu
– Sim pela graça de Deus
Canhem Babá Canhem Babá Cum Cum!
E fizeram o Carnaval.
Andrade, Oswald de. Poesias reunidas. 5 ed. Rio de Janeiro: Civilização Brasileira, 1978.
Como todo texto, o poema de Oswald de Andrade apresenta uma intenção subjacente, que é:
Provas
Questão presente nas seguintes provas
Foi um dos primeiros linguistas a estudar uma língua de sinais com tratamento linguístico. Considerado o pai da linguística da língua de sinais:
Provas
Questão presente nas seguintes provas
Na morfologia da língua de sinais, temos a incorporação de números. São exemplos desse caso, exceto:
Provas
Questão presente nas seguintes provas
Em relação ao disposto na NBR 9050/04, norma brasileira que trata da acessibilidade a edificações, mobiliário, espaços e equipamentos urbanos, é CORRETO afirmar que:
Provas
Questão presente nas seguintes provas
Texto para a questão abaixo.

Disponível em: http://fotografia.folha.uol.com.br/galerias/46834-charges-outubro-de-2016#foto-643694
Em “Não há teto para saúde e educação”, observa-se:
Provas
Questão presente nas seguintes provas
Texto para a questão abaixo.
MOVIMENTO ESCOLA SEM PARTIDO É UM
PARTIDO CHEIO DE CONTRADIÇÕES
Veio ao mundo o projeto de lei Escola sem Partido. Nasceu na família brasileira tradicional. Seu pai é o senador Magno Malta (PR-ES), e são seus irmãos os planos de redução da maioridade penal, de criminalização do aborto e de revogação do Estatuto do Desarmamento. Tem ainda laços de sangue com a estirpe xenófoba que se espalha por Europa e Estados Unidos. Com a saúde que exibe a linhagem, é de se esperar muitos novos rebentos. O Escola sem Partido, como seus parentes, exprime uma maneira de pensar a convivência em sociedade. A certidão de nascimento revela a identidade: ensinar sem partidarizar.
O site da família detalha tim-tim por tim-tim a aversão à parentela oposta, a dos com-partido. São desafetos os portadores de valores contrários. Depoimentos de aderentes o elucidam. Temem que adolescentes aprendam sobre igualdade de gênero e combate à homofobia, discutam pressupostos religiosos e se filiem a movimentos sociais de esquerda.
A lista é mais longa, mas seu sumo é a crítica a qualquer estímulo à liberdade de pensamento. Os sem-partidos receiam a "contaminação ideológica" – como se também não exprimissem uma ideologia – e propagandeiam como antídoto uma "biblioteca politicamente incorreta". Mobilizam-se em defesa da família brasileira, instituição que julgam sob ameaça, cerceada em sua liberdade de transmitir valores.
A queixa exprime tensão antiga entre particular e universal. A família vincula por sangue e afeto e é o espaço mais potente de reprodução da hierarquia social. Dê uma olhada em volta: quem nasce em casa de médico, advogado, engenheiro, costuma adquirir idêntico diploma. Já a escola propicia, ou deveria, convivência compulsória com o diferente em corpo e alma. A experiência da diversidade incute a tolerância ao apresentar o distinto antes como complemento que como ameaça. A escola também provê, ou deveria, um escape da família.
Os sem-partido protegem a liberdade dos pais de transmitir suas crenças, mas a escola defende a dos filhos de produzir as próprias: proporciona estilos alternativos de pensar, crucial para constituição de pensamento autônomo. Provê uma liberdade que os sem-partido negam, a de dissentir dos consanguíneos.
Acima disse "a escola deveria" porque na prática sua versão privada espelha a segregação social, se restringe a um estrato, com mesmos hábitos, renda, cor e sobrenome. De seu lado, a escola pública, pelas dificuldades conhecidas, recebe apenas os sem renda suficiente para se refugiarem na escolarização privada. Cada um dos modelos tende a reproduzir uma ponta da pirâmide social. Sobra homogeneidade no grupo do alto, como no de baixo. Nenhum deles precisa da redução adicional da diversidade propalada pelos partidários do Escola sem Partido.
Isso mesmo: partidários. Os defensores do projeto falam em nome da nação, mas compõem partido no sentido lato da palavra. Os partidos políticos modernos apareceram simultaneamente aos parlamentos e movimentos sociais. São invenções ocidentais de fins do século 18, já demonstrou Charles Tilly. Primos-irmãos, movimentos e partidos se distinguem no grau de institucionalização, mas visam ao mesmo: exprimir demandas sociais sobre assuntos públicos. No Brasil Império, o segundo termo aludia a grupo de interesse –"partido do café"– ou de ideias –"partido abolicionista". Partido como facção, a favor ou contra certa causa.
A palavra remete ao ato de partir e desvela a existência do todo que nenhuma parte representa por completo. Aponta que o sentido do conjunto está sob contenda. A sociedade é heterogênea, heterogêneas são suas aspirações. Nas democracias, as divergências resolvem-se no voto, em vez de pela força – ou por manobras, como no Brasil de hoje. Mas não desaparecem, nem desaparecerão por mandinga ou projeto de lei. E é bom que assim seja, que haja campo para desacordo. Nenhum partido é a nação, esse ente abstrato. A comunhão pátria é excepcional – saliente nas guerras e copas do mundo. No dia a dia, cada um tem seu time, sua religião, seu estilo de vida, seu partido.
Os apoiadores do Escola sem Partido têm o seu, compõem partido de ideias. Trata-se de contradição, mas não a única: negam os partidos, mas agem por meio de um deles – o Partido da República, que de republicano não tem nada.
O partido do Escola sem Partido propaga uma autoilusão, a de encarnar a pátria. Ora, os rumos da nação estão sempre em disputa. Sua encarnação em um líder ou confraria de ungidos só é possível quando se esmaga o adversário. Erdogan deu o exemplo na Turquia, ao fechar seis centenas de escolas.
Alonso, Angela. Folha Online, 31 jul 2016. Disponível em: http://www1.folha.uol.com.br/colunas/angela-alonso/2016/07/1796548-movimento-escola-sem-partido-e-um-partido-cheio-de-contradicoes.shtml
No trecho “Isso mesmo: partidários.” (7º parágrafo), a palavra “mesmo” foi usada com valor
Provas
Questão presente nas seguintes provas
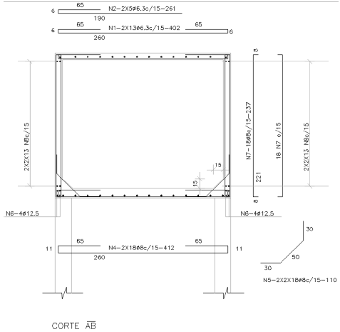
Considerando as seguintes informações do projeto estrutural de um reservatório, que tem as medidas em centímetros e os diâmetros das armaduras em milímetros, é CORRETO afirmar que:


Provas
Questão presente nas seguintes provas
Texto para a questão abaixo.
“INTELECTUÁULICO”: ISSO EXISTE?
A figura do intelectual é francesa. Seu modelo mais luminoso talvez seja o escritor Émile Zola (1840-1902), autor de Germinal. Zola é a encarnação clássica do homem de letras que, num momento crítico da nação, tem a coragem necessária para abandonar sua biblioteca e entrar de peito aberto no combate das ideias, no meio da arena pública. No dia 13 de janeiro de 1898, ele publicou na primeira página do jornal L’Aurore, de Paris, uma carta aberta ao então presidente francês, Felix Faure, acusando-o pela farsa jurídica tramada para levar o capitão de origem judaica Alfred Dreyfus à prisão perpétua. O título desse artigo, em letras devidamente garrafais, entrou para a História: “J’accuse...!” (“Eu acuso...!”). Em poucas horas, os 300 mil exemplares do Aurore se esgotaram nas bancas. Em pouco tempo, Dreyfus seria libertado pela força da opinião pública, e a intriga corrupta de antissemitismo que perseguia o capitão estaria derrotada.
O paradigma ficou. O intelectual é alguém como Zola, dedicado ao pensamento e, ao mesmo tempo, disposto a intervir publicamente na defesa de teses difíceis, que nunca são óbvias. O intelectual precisa ser bem informado, ter cultura humanista e vasta erudição para demonstrar a veracidade de ideias que contrariam o senso comum. Do mesmo modo, precisa ter destemor para correr os riscos que a defesa de ideias controversas costuma cobrar. Com Émile Zola foi exat amente assim. Se a acusação que ele fez ao presidente se revelasse mentirosa, sua reputação estaria arruinada.
Para resumir: um estudioso que nunca dá a cara a tapa, que nunca se expõe ao risco, pode ser um bom acadêmico, mas não é um intelectual; de outr o lado, um polemista temerário que vive da polêmica sem muitos fundamentos pode ser muito vistoso, mas, por escassez de substância, também não é intelectual.
Prossigamos. Outro francês que virou um símbolo do que significa ser intelectual foi o filósofo J ean Paul Sartre (1905 1980). Em matéria de teses difíceis, Sartre exagerou um pouco na sua apologia do totalitarismo soviético, mas sua filosofia existencialista sobreviveu e influencia muita gente até hoje. No Brasil, inclusive. Uma de suas lições mais ra dicais embora ele não tenha sido o único a ensiná la é aquela que afirma que, sem liberdade, nada feito. Para bom entendedor, quem renuncia à própria liberdade simplesmente deixa de existir.
A lição vale para qualquer uma ou qualquer um, mas é especia lmente válida para jornalistas, escritores, acadêmicos, artistas e, ainda mais, é válida para os intelectuais. Um intelectual que renuncia a sua liberdade de conhecer a verdade dos fatos é um absurdo absurdíssimo. À luz dos modelos de Sartre ou de Zola e Raymond Aron, Claude Leffort e tantos mais ––, o intelectual tem compromisso com as ideias, não com a obediência a uma igreja, a um Estado, a um time de futebol ou a um... partido.
O intelectual pensa e, se pensa, pensa contra. O intelectual fala e, se fa la, fala contra. O intelectual é um indivíduo, não um “coletiv o”. Intelectual a favor é um oxí moro. O intelectual que não incomoda e não fustiga, mas adula e, por sabujice ou carência afetiva, aceita dobrar se em deferências a um líder religioso, a um pres idente da República, a um marechal, a um cacique, não é um intelectual é apenas um áulico. Mas o que vem a ser um “áulico”? A palavra vem de outras paragens. Com origens que remontam ao grego ( aulikós ), passando pelo latim aulicus ), ela ressurgiu no sé culo XVI com o sentido de “cortesão”, de “palaciano”. Hoje, designa aquele que enaltece e glorifica o poderoso. Se o poderoso em questão se encontra instalado no Estado ou aboletado no comando das legiões oposicionistas, é o de menos. Qualquer poderoso, es teja onde estiver, nutre estima por seus áulicos, aqueles amigos solícitos que riem de suas piadas, acendem seus cigarros e, quando conseguem atrair um microfone, elogiam os dotes visionários do chefe.
Logo, um áulico é o oposto de um intelectual. Para se r um áulico, o sujeito não pode querer pensar muito, pois, se muito pensar, sua lealdade ao chefe deixará de ser assim tão constante, tão canina. Não obstante, eis que começam a pipocar áulicos que se emprestam ares de intelectuais independentes. Aí é que fica engraçado. Poderia existir esse híbrido entre o áulico e o intelectual? Poderia haver o “intelectuáulico”?
Como no Brasil, em se plantando, tudo dá, nada é impossível. Fiquemos de olho na safra da estação.
BUCCI, Eugênio. Disponível em:
http://epoca.globo.com/politica/eugenio-bucci/noticia/2016/11/intelectuaulico-isso-existe.html
Acesso: 28/11/2016
No trecho “Uma de suas lições mais radicais – embora ele não tenha sido o único a ensiná-la – é aquela que afirma que, sem liberdade, nada feito.”, as palavras destacadas são, respectivamente:
Provas
Questão presente nas seguintes provas
Cadernos
Caderno Container