Magna Concursos

Foram encontradas 40 questões.

3329067 Ano: 2013
Disciplina: Engenharia Elétrica
Banca: FUNCAB
Orgão: CAGECE
Provas:

A figura abaixo ilustra um conjunto de cinco símbolos usados nas instalações elétricas, de acordo com a NBR5444:1989.

Enunciado 3748528-1

Esses símbolos representam, respectivamente:

 

Provas

Questão presente nas seguintes provas
3329066 Ano: 2013
Disciplina: Engenharia Elétrica
Banca: FUNCAB
Orgão: CAGECE
Provas:

Na figura abaixo, que contém parte de um projeto elétrico, estão representados alguns símbolos gráficos usadoseminstalações elétricas prediais.

Enunciado 3748527-1

Para os símbolos indicados pelas setas pontilhadas, identificados pelas letras A e B, é correto afirmar que representam,em sequência:

 

Provas

Questão presente nas seguintes provas
3329065 Ano: 2013
Disciplina: Engenharia Eletrônica
Banca: FUNCAB
Orgão: CAGECE
Provas:

Diagrama funcional detalhado típico de uma malha de controle.

Enunciado 3748526-1

O elemento responsável pela setpoint da malha de controle é indicado por:

 

Provas

Questão presente nas seguintes provas
3329064 Ano: 2013
Disciplina: Engenharia Elétrica
Banca: FUNCAB
Orgão: CAGECE
Provas:

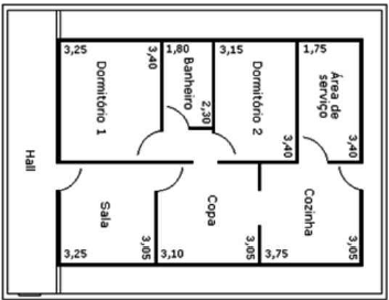
Tomando como base a planta baixa a seguir, determine o somatório das potências atribuídas às cargas de iluminação e tomadas de uso geral para a cozinha.

Enunciado 3748523-1

Considere:

Cos \( \varphi \) = 1 para cargas de ilumina

Cos \( \varphi \)= 0,8 para cargas de tomadas

 

Provas

Questão presente nas seguintes provas
3329063 Ano: 2013
Disciplina: Engenharia Elétrica
Banca: FUNCAB
Orgão: CAGECE
Provas:

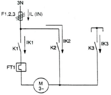
O diagrama unifilar a seguir representa um sistema de partida estrela -triângulo. O contator responsável por conectar em estrela os terminais do motor deve ser capaz de conduzir uma corrente igual a:

Enunciado 3748522-1

 

Provas

Questão presente nas seguintes provas
3329062 Ano: 2013
Disciplina: Engenharia Elétrica
Banca: FUNCAB
Orgão: CAGECE
Provas:

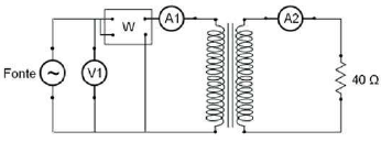
Considere o circuito abaixo, onde foram lidos os seguintes valores nos instrumentos.

Enunciado 3748519-1

V1 = voltímetro de ferro móvel > 120 V

A1 = amperímetro de ferro móvel > 1A

A2 = amperímetro de ferro móvel > 1,5A

W= wattímetro dinamométrico > 100W

O valor da potência elétrica transformada em trabalho e o fator de potência do circuito são, respectivamente:

 

Provas

Questão presente nas seguintes provas
3329061 Ano: 2013
Disciplina: Engenharia Elétrica
Banca: FUNCAB
Orgão: CAGECE
Provas:

No circuito da figura abaixo, o amperímetro registra uma corrente \( i = 0,2\,A \). Cada um dos três resistores representados na figura tem resistência \( R = 40\,\Omega \). Qual é a potência dissipada pelo par de resistores associado sem paralelo?

Enunciado 3748512-1

 

Provas

Questão presente nas seguintes provas
3329060 Ano: 2013
Disciplina: Engenharia Eletrônica
Banca: FUNCAB
Orgão: CAGECE
Provas:

No sistema pneumático ilustrado abaixo, a indicação “a0” representa a válvula:

Enunciado 3748511-1

 

Provas

Questão presente nas seguintes provas
3329059 Ano: 2013
Disciplina: Engenharia Elétrica
Banca: FUNCAB
Orgão: CAGECE
Provas:

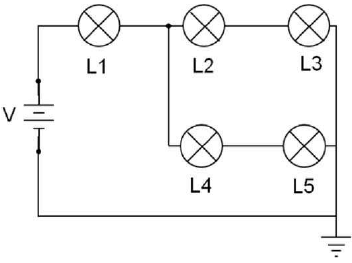
O circuito da figura a seguir representa um esquema de ligação de cinco lâmpadas de mesma resistência, cujo valor é dado por R. Admita que a tensão da fonte e as resistências no circuito se mantêm constantes. Após um intervalo de tempo longo, a lâmpada L3 queimou, ou seja, rompeu seu filamento e permaneceu apagada. Assim, com a queima da lâmpada L3, a(s) potência(s) dissipada(s) pela(s) lâmpada(s):

Enunciado 3748510-1

 

Provas

Questão presente nas seguintes provas

No Windows Explorer, a tecla ou combinação de teclas de atalho que permite recortar um arquivo ou uma pasta é:

 

Provas

Questão presente nas seguintes provas