Foram encontradas 50 questões.
O biometano é obtido a partir do processamento do biogás e decorre da digestão anaeróbica de material essencialmente orgânico, provindo, por exemplo,
Provas
O gás natural, em similaridade com o petróleo, resulta da degradação da matéria orgânica, fósseis de plantas e de animais, acumulados em rochas há milhares de anos. Por ser uma mistura de hidrocarbonetos gasosos, e neste caso formado principalmente por metano e outros gases mais pesados, quando a ocorrência destes for maior de 7%, é chamado de:
Provas
O Decreto Federal nº 10.712/2021, que regulamenta a Lei nº 14.134/2021 (atividades relativas ao transporte de gás natural), dispõe que a conexão direta entre instalação de transporte e usuário final de gás natural poderá ser realizada
Provas
O protocolo
Provas
- LinuxComandosdf
- LinuxManipulação de Arquivos e Pastas (Shell)ls
- LinuxManipulação de Texto (Shell)cat
Considere que um usuário de um computador com o sistema operacional Linux funcionando em condições ideais usou, de forma adequada, os comandos df, cat e ls. Esses comandos são utilizados, correta e respectivamente, para
Provas
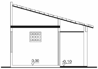
Considere a figura a seguir.

Em relação ao projeto, o desenho é denominado:
Provas
Quanto ao aparelho de gás tipo B, a ABNT NBR13103 − Instalação de aparelhos de gás estabelece:
Provas
Revestimentos de parede auxiliam as vedações verticais a cumprirem suas funções de:
I. estanqueidade ao ar e à água.
II. proteção térmica e acústica.
III. estética e embelezamento.
IV. segurança, contra a ação do fogo e intrusões; resistência mecânica da própria vedação.
Está correto o que se afirma em
Provas
No sistema de impermeabilização, a camada de separação tem como função
Provas
As barras de aço utilizadas nas estruturas de concreto armado podem ser emendadas. As emendas com solda podem ser utilizadas em barras de aço com características de soldabilidade, podendo ser
Provas
Caderno Container