Magna Concursos

Foram encontradas 1.245 questões.

3248239 Ano: 2015
Disciplina: Engenharia Civil
Banca: UFMA
Orgão: IF-MA

De acordo com a NBR 8.403 (Aplicação de Linhas em Desenho Técnico), o tipo de linha recomendado para representar arestas invisíveis é

 

Provas

Questão presente nas seguintes provas
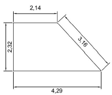
3248238 Ano: 2015
Disciplina: Engenharia Civil
Banca: UFMA
Orgão: IF-MA

A figura cotada de acordo com a NBR 10.126 (Cotagem em Desenho Técnico) é:

 

Provas

Questão presente nas seguintes provas
3248237 Ano: 2015
Disciplina: Engenharia Civil
Banca: UFMA
Orgão: IF-MA

De acordo com a NBR 6.118 (Projeto de estruturas de concreto – Procedimento), as estruturas de concreto devem ser projetadas e construídas de modo que, sob as condições ambientais previstas na época do projeto e quando utilizadas conforme preconizado em projeto, conservem sua segurança, estabilidade e aptidão em serviço durante o período correspondente à sua vida útil. Com relação ao mecanismo de envelhecimento e deterioração, pode-se afirmar que os mecanismos preponderantes de deterioração relativos à armadura são:

 

Provas

Questão presente nas seguintes provas
3248236 Ano: 2015
Disciplina: Engenharia Civil
Banca: UFMA
Orgão: IF-MA

Os concretos pesados, entre outras aplicabilidades, são utilizados em estruturas de contenção, especialmente nas de proteção contra radiações nocivas à saúde, como os raios y e os nêutrons. A atenuação da radiação se dá pela adição de agregados especiais, tais como:

 

Provas

Questão presente nas seguintes provas
3248235 Ano: 2015
Disciplina: Engenharia Civil
Banca: UFMA
Orgão: IF-MA

Os concretos com ar incorporado, utilizado em algumas estruturas especiais, diferenciam-se dos concretos porosos não só pela porcentagem de ar contido na massa, mas também pelo tamanho e disposição das bolhas de ar. O ar intencionalmente incorporado à massa tem uma porcentagem média e quantitativo de bolhas estimada equivalentes a

 

Provas

Questão presente nas seguintes provas
3248234 Ano: 2015
Disciplina: Engenharia Civil
Banca: UFMA
Orgão: IF-MA

Assinale a opção em que os parâmetros podem analisar os efeitos das forças não pontuais em um corpo rígido.

 

Provas

Questão presente nas seguintes provas
3248233 Ano: 2015
Disciplina: Engenharia Civil
Banca: UFMA
Orgão: IF-MA

De acordo com os princípios da estabilidade, o centro de gravidade de triângulos (G) pode ser encontrado por meio da determinação das coordenadas (xg, yg). Essas coordenadas podem ser definidas em função somente da base (b) e da altura (h). No triângulo retângulo, cuja referência é seu ângulo reto, o centro de gravidade pode ser matematicamente escrito:

 

Provas

Questão presente nas seguintes provas
3248232 Ano: 2015
Disciplina: Engenharia Civil
Banca: UFMA
Orgão: IF-MA

A análise da estabilidade de taludes é um importante processo que auxilia os profissionais de construção civil a aferir as características de performance. As análises determinísticas podem ser aplicadas em função da teoria da plasticidade. Assinale a opção que exemplifica métodos simplificados (em fatias).

 

Provas

Questão presente nas seguintes provas
3248231 Ano: 2015
Disciplina: Engenharia Civil
Banca: UFMA
Orgão: IF-MA

O propósito de um sistema de controle de qualidade é assegurar que seus produtos e seus diversos processos satisfaçam as necessidades dos usuários. Com base nessa premissa, assinale a opção que apresenta características referentes ao sistema de controle de qualidade.

 

Provas

Questão presente nas seguintes provas
3248230 Ano: 2015
Disciplina: Engenharia Civil
Banca: UFMA
Orgão: IF-MA

A indústria da construção civil possui características peculiares, que a difere da indústria de transformação, dificultando a utilização de práticas e teorias referentes à implantação de programas de controle de qualidade. Dentre essas características, é CORRETO afirmar que

 

Provas

Questão presente nas seguintes provas