Foram encontradas 450 questões.
Disciplina: Engenharia Civil
Banca: Consulplan
Orgão: Pref. Santana Vargem-MG
O canteiro de obras é uma das primeiras etapas no processo de edificação, que envolve uma série de ações e cuidados visando à otimização dos recursos financeiros, a segurança e a qualidade do trabalho executado. Considerando a organização de canteiro de obras, analise as afirmativas a seguir.
I. Os materiais granulados, como: cimento, areia, cal e brita devem ser separados adequadamente em locais totalmente fechados, evitando, assim, desperdícios, que podem ser localizados em qualquer local do canteiro de obras.
II. O local de acondicionamento da ferragem deve ser adequadamente identificado, sendo cada barra de aço identificada e separada por tipo de diâmetro, além de cuidados na proteção superficial da mesma e seu contato com intempéries.
III. As edificações provisórias do canteiro de obras, como vestiário, refeitório, depósito e outros, devem ser sempre executadas em locais onde irão permanecer durante todo o período da obra.
Está correto o que se afirma apenas em
Provas
Disciplina: Engenharia Civil
Banca: Consulplan
Orgão: Pref. Santana Vargem-MG
Um pilar em concreto armado da classe C40 está sendo submetido a uma carga próxima de seu máximo de resistência. Considerando o pilar em tela um elemento com seção transversal de projeto de 35 x 60 cm2, determine a carga máxima concêntrica que poderá atuar sobre o pilar, sabendo que ele tem 620 cm de altura e, além desta carga, também terá de suportar o seu peso próprio. Desprezando a verificação da flambagem do pilar, assinale o valor aproximado da carga máxima característica (nominal de projeto) a ser aplicada no pilar, sem consideração do peso próprio.
Provas
Disciplina: Legislação Federal
Banca: Consulplan
Orgão: Pref. Santana Vargem-MG
Em conformidade com o disposto na Lei nº 13.465/2017, é correto afirmar que “o proprietário de uma construção-base poderá ceder a superfície superior ou inferior de sua construção, a fim de que o titular da laje mantenha unidade distinta daquela originalmente construída sobre o solo”. Considerando tal item da Lei, analise as afirmativas a seguir.
I. O direito real de laje contempla o espaço aéreo ou o subsolo de terrenos públicos ou privados, tomados em projeção vertical, como unidade imobiliária autônoma, não contemplando as demais áreas edificadas ou não pertencentes ao proprietário da construção-base.
II. O titular do direito real de laje responderá pelos encargos e tributos que incidirem sobre toda a construção.
III. Os titulares da laje, unidade imobiliária autônoma constituída em matrícula própria, poderão dela usar, gozar e dispor; porém, a instituição do direito real de laje não implica a atribuição de fração ideal de terreno ao titular da laje ou a participação proporcional em áreas já edificadas.
IV. O titular da laje tem o direito de ceder a superfície de sua construção para a instituição de um sucessivo direito real de laje, mesmo sem a autorização dos titulares da construção-base e das demais lajes.
V. É expressamente vedado ao titular da laje prejudicar com obras novas ou com falta de reparação a segurança, a linha arquitetônica ou o arranjo estético do edifício, observadas as posturas previstas em legislação local.
VI. Em caso de alienação de qualquer das unidades sobrepostas, terão direito de preferência, em igualdade de condições com terceiros, os titulares da construção-base e da laje, nesta ordem, que serão cientificados por escrito para que se manifestem no prazo de trinta dias, salvo se o contrato dispuser de modo diverso. Se houver mais de uma laje, terá preferência, sucessivamente, o titular das lajes ascendentes e o titular das lajes descendentes, assegurada a prioridade para a laje mais próxima à unidade sobreposta a ser alienada.
Está correto o que se afirma apenas em
Provas
Disciplina: Engenharia Civil
Banca: Consulplan
Orgão: Pref. Santana Vargem-MG
O foco da manutenção preditiva é fazer um acompanhamento periódico das estruturas por meio de análises técnicas e do monitoramento, o que é fundamental para a conservação da vida útil dos componentes. A manutenção preditiva possibilita otimizar a troca ou a reforma de componentes e estender o intervalo de manutenção, pois permite prever quando os elementos estarão próximos do seu limite de vida. Algumas técnicas incluem análise de vibração, ultrassom, inspeção visual e outros procedimentos que evitam o desmonte desnecessário da estrutura. A manutenção preditiva é muito comum na engenharia aeronáutica e mecânica. Seu uso como prática de gerenciamento de Obras de Artes Especiais (OAE) ainda é muito restrito no Brasil, que não tem essa cultura, visto que a relação custo-benefício das inspeções na maioria das vezes é relativamente alta. No entanto, o progresso industrial e o crescimento das cidades resultaram em um aumento da poluição urbana, aumentando, assim, a exposição das OAEs a ambientes desfavoráveis. A comunidade brasileira de construção, mediante tais problemas, tem se atentado para a necessidade do projeto para a durabilidade de seu maior controle e execução de novas OAEs e, sobretudo, da necessidade do constante monitoramento alinhado com a manutenção das construções existentes. Em relação à manutenção de OAE, assinale a afirmativa INCORRETA.
Provas
Disciplina: Engenharia Civil
Banca: Consulplan
Orgão: Pref. Santana Vargem-MG
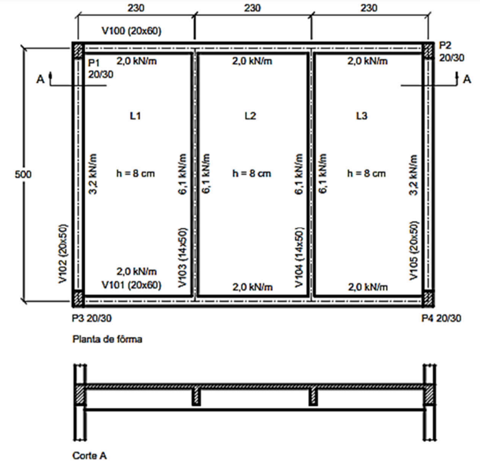
Uma laje em concreto armado (figura a seguir) será construída utilizando um traço de 1:2:2 em massa seca de cimento, areia e brita. Sabe-se que a areia disponível apresenta massa unitária seca de 1.280 kg/m3; porém, foi disponibilizada no canteiro com inchamento médio de 25%:

Fig. Medida em cm.
Ao ser identificado um consumo de cimento de 400 kg/m3, o volume de areia úmida necessário para a concretagem da laje é de, aproximadamente:
Provas
Disciplina: Engenharia Civil
Banca: Consulplan
Orgão: Pref. Santana Vargem-MG
Os sistemas de drenagens contribuem de forma significativa para a estabilização de taludes, visto que a água é um dos elementos de principal causa de instabilidade nestas estruturas. Assim, o dimensionamento hidráulico dos principais dispositivos de drenagem dependem da estimativa da vazão de contribuição, características geométricas, precipitação local, condições superficiais e outras. Considerando que os elementos de drenagem em taludes podem ser divididos em drenagem superficial e profunda, analise as afirmativas a seguir.
I. Os drenos sub-horizontais são também denominados Drenos Horizontais Profundos (DHP); são elementos de pequeno diâmetro e executados em grande quantidade, que têm como propósito reduzir a água infiltrada no maciço, a fim de aumentar a vazão de percolação e efeitos oriundos do desenvolvimento de pressão positiva.
II. As escadas d’água são elementos construídos em forma de degraus com a função de coletar e conduzir as águas oriundas das canaletas, com o objetivo de reduzir a velocidade de escoamento.
III. As canaletas longitudinais de berma são elementos constituídos no sentido longitudinal da berma dos taludes, com a finalidade de dissipar a energia hidráulica das águas coletadas, reduzindo, assim, a suscetibilidade de processo erosivo no pé do talude.
Está correto o que se afirma apenas em
Provas
Disciplina: Engenharia Civil
Banca: Consulplan
Orgão: Pref. Santana Vargem-MG
Muro de arrimo é uma estrutura volumétrica destinada a estabilizar encostas junto às edificações nas áreas urbanas, pontes, estradas ou ruas. No dimensionamento de um muro de arrimo consideram-se pela Teoria de Rankine ou Teoria de Coulomb dois tipos de efeitos na determinação do empuxo de terra, que deve ser entendido como a ação produzida pelo maciço terroso sobre as obras com ele em contato. Assim, podemos falar de Estado Ativo, que é a pressão lateral exercida pelo solo no muro, consequência de uma distensão horizontal do maciço e de Estado Passivo, que é a pressão lateral exercida pelo muro no solo, ocasionando uma compressão no maciço. Para execução de uma estrutura de contenção de um talude de solo arenoso previu-se a construção de um muro de concreto armado com 8,0 m de altura, sendo a superfície do terreno horizontal e o nível do lençol freático fica abaixo da base do muro. Considerando o peso específico do solo arenoso de 20 kN/m3, o ângulo de atrito de 30° (Sen 30° = 0,50) e o coeficiente do empuxo ativo (ka = 0,32), o empuxo ativo total é:
Provas
Disciplina: Engenharia Ambiental e Sanitária
Banca: Consulplan
Orgão: Pref. Santana Vargem-MG
O Brasil ainda enfrenta grandes problemas relacionados ao acesso a sistemas de tratamento de esgotos e águas, sendo o novo marco regulatório do setor um importante instrumento de fomento a políticas públicas, visando a sua universalização. As estações de Tratamento de Esgotos (ETE) tradicionais são compostas pela etapa preliminar, primária, secundária e em alguns casos terciária, e precisam manter sua eficiência e bom desempenho ao longo de sua operação, requerendo manutenções preventivas e corretivas, feitas por técnicos especializados. Sendo assim, em relação às Estações de Tratamento de Esgotos (ETEs) tradicionais, assinale a afirmativa correta.
Provas
Disciplina: Engenharia Civil
Banca: Consulplan
Orgão: Pref. Santana Vargem-MG
Seja uma viga em concreto armado C40, de seção transversal 12 x 50 cm2, rotulada no lado A e engastada no lado B, com 6,0 metros de comprimento total, contendo um balanço de 1,0 m. Se a viga suporta além de seu peso próprio (PP) uma carga uniformemente distribuída de 450 kgf/m entre os apoios e não suporta carga no balanço além do PP, determine o momento máximo positivo e o momento máximo negativo necessários para o dimensionamento da armadura da viga, considerando o peso específico do concreto de 25 kN/m3.
Provas
Quando os efeitos colaterais do câncer ou do seu tratamento interferem na ingestão alimentar, alguns ajustes podem ser feitos para garantir que o paciente continue recebendo suporte nutricional necessário. Os problemas orais mais frequentes, após químio e radioterapia, são a mucosite e a estomatite. NÃO corresponde à recomendação para estes problemas orais
Provas
Caderno Container