Foram encontradas 40 questões.
1431505
Ano: 2011
Disciplina: Desenho Técnico e Industrial
Banca: CAIP-IMES
Orgão: Pref. Santo André-SP
Disciplina: Desenho Técnico e Industrial
Banca: CAIP-IMES
Orgão: Pref. Santo André-SP
Provas:
Analise as afirmativas abaixo a cerca da execução de desenhos utilizado o auto CAD e escolha a alternativa correta.
A- Quando você copia um desenho ou parte deste, na mesma prancha ou arquivo, as layers que estavam apagadas ou inibidas não acompanham a cópia.
B- Quando você salva e fecha um arquivo com uma série de layers inibidas ou apagadas, você perderá estas informações, pois, por estarem inibidas, não serão salvas.
C- O comando Purge retira do arquivo as layers não utilizadas.
D- A qualidade de um desenho em auto CAD, pode ser verificada pela quantidade e especificação das várias camadas ou layers existentes.
E- Por intermédio da utilização racional das layers, seria teoricamente possível em um mesmo desenho representar as instalações elétricas e as hidráulicas de um prédio.
F- Quando você congela uma layer, ela não deixa de existir, porém deixa de ser visualmente observada na tela.
Provas
Questão presente nas seguintes provas
A permeabilidade do concreto é uma característica intimamente ligada à sua longevidade. No concreto aparente, onde não há nenhum revestimento com pasta ou argamassa, esta questão se agrava. A corrosão da armadura, uma das principais causas da deterioração do concreto, que pode ter como agente a carbonatação, é um exemplo claro de uma ação agravada pela permeabilidade do concreto. Uma ação para melhorar a performance do concreto em realção à questão exposta, seria:
Provas
Questão presente nas seguintes provas
Abaixo apresentamos duas figuras: um projeto de armação de uma viga de concreto e uma tabela com informações sobre as barras de aço.
Abaixo apresentamos as posições de cada peça de aço que compõe a armação da viga. Escolha a alternativa que corretamente correlacione a posição com o tipo de armação.
1 - N 1 A - Estribos
2 - N 2 B - Armação positiva
3 - N 3 C - Armação negativa.
4 - N 4 D - Armação de costela.
Provas
Questão presente nas seguintes provas
1407246
Ano: 2011
Disciplina: Direito Urbanístico
Banca: CAIP-IMES
Orgão: Pref. Santo André-SP
Disciplina: Direito Urbanístico
Banca: CAIP-IMES
Orgão: Pref. Santo André-SP
Provas:
Acerca da Lei de Uso, Ocupação e Parcelamento do Solo da Macrozona Urbana de Santo André, analise as afirmativas abaixo e escolha a alternativa correta.
A- A produção/construção de HIS (Habitação de Interesse Social) e HMP (Habitação de Mercado Popular) é permitida em toda a Macrozona Urbana, exceto na Zona Exclusivamente Industrial.
B- Os fatores/níveis de incomodidade estabelecidos na legislação municipal se dividem em “não incômodo”; “incômodo I”; “incômodo II” e “incômodo III”.
C- Na tipologia multifamiliar vertical, será admitido o uso não-residencial “não Incômodo”, limitado aos dois primeiros pavimentos da edificação.
D- Os parâmetros urbanísticos se alteram de acordo com o uso do solo, como por exemplo: Residencial Unifamiliar e Multifamiliar de Pequeno Porte; Usos Residencial Multifamiliar Vertical e Multifamiliar do Tipo Vila; Uso não residencial.
E- Os seguintes parâmetros: emissão de ruído, geração de impacto causada pelo uso de máquinas, utensílios ruidosos e aparelhos sonoros ou similares no entorno servem para estabelecer o nível de incomodidade.
Provas
Questão presente nas seguintes provas
1407012
Ano: 2011
Disciplina: Direito Ambiental
Banca: CAIP-IMES
Orgão: Pref. Santo André-SP
Disciplina: Direito Ambiental
Banca: CAIP-IMES
Orgão: Pref. Santo André-SP
Provas:
A Política Municipal de Gestão e Saneamento Ambiental de Santo André tem como objetivo, respeitadas as competências da União e do Estado, manter o Meio Ambiente equilibrado buscando o desenvolvimento sustentável e fornecer diretrizes ao poder público e à coletividade para a defesa, conservação e recuperação da qualidade e salubridade ambiental, cabendo a todos o direito de exigir a adoção de medidas nesse sentido. O texto trata da introdução de lei específica da Prefeitura Municipal de Santo André, que versa sobre as questões relativas ao meio ambiente. Abaixo apresentamos duas colunas de informações. Escolha a alternativa que corretamente correlacione uma coluna com a outra.
1 - Semasa
2 - Fumgesan
3 - Comugesan
4 - Planesan
5 - Singesa
A- Estabelece padrão de uso e cobrança relativo à exploração comercial de água.
B- Fundo financeiro.
C- Conjunto de agentes institucionais.
D- Acompanha a implementação da Política Municipal de Gestão e Saneamento Ambiental.
E- Norteia as ações de Saneamento Ambiental do Município.
Provas
Questão presente nas seguintes provas
Abaixo apresentamos duas figuras: um projeto de armação de uma viga de concreto e uma tabela com informações sobre as barras de aço.


Considerando a área de aço das barras longitudinais em determinadas seções da viga, é correto afirmar:
Provas
Questão presente nas seguintes provas
Abaixo apresentamos duas figuras: um projeto de armação de uma viga de concreto e uma tabela com informações sobre as barras de aço.


Considerando a distância entre P17 e P30 como sendo igual a 2,98 m (aproxime para 3,00m em seus cálculos), e a distância entre P28 e P17 igual a 0,90 m (medidas pelas faces externas – P28 e P 30, e eixo para P17) e que o concreto a ser utilizado consome 350 kg de cimento por !$ m^3 !$, escolha a alternativa que contenha o volume de concreto necessário à execução do serviço, assim como o número de sacos de cimento (50 kg). Despreze qualquer tipo de perda no cálculo do volume.
Provas
Questão presente nas seguintes provas
1401872
Ano: 2011
Disciplina: Direito Urbanístico
Banca: CAIP-IMES
Orgão: Pref. Santo André-SP
Disciplina: Direito Urbanístico
Banca: CAIP-IMES
Orgão: Pref. Santo André-SP
Provas:
Considerando Código de obras e Edificações do Município de Santo André, é correto afirmar que:
Provas
Questão presente nas seguintes provas
O pré-dimensionamento de bombas hidráulicas pode ser executado com a utilização de curvas características dos vários modelos de conjunto moto-bomba. Estes ábacos podem ser fornecidos pelos próprios fabricantes dos produtos e correlacionam a altura manométrica e a vazão desejada. Considerando estas informações e a figura, analise as afirmativas abaixo e escolha a alternativa correta.

A- A altura manométrica de um prédio de 3 pavimentos, considerando um pé direito, piso a piso, de 3,00m (cota piso térreo = 100,00) e ainda que o fundo do reservatório inferior está na cota 98,00 e o topo do reservatório superior, 3,00m acima da última laje, é igual a 14,00 metros.
B- Uma bomba de sucção é chamada de afogada quando seu eixo situa-se abaixo do nível do reservatório.
C- Em um pré-dimensionamento de uma bomba para atender uma altura manométrica de 10,00m e uma vazão de 15.000 a 25.000 l/h, o ábaco acima nos fornece 2 opções de conjuntos.
D- A rugosidade da parede dos tubos interfere diretamente no pré-dimensionamento dos conjuntos de moto bomba.
E- O fenômeno da cavitação está relacionado com a altura de sucção, potência da bomba e pressão atmosférica do local.
Provas
Questão presente nas seguintes provas
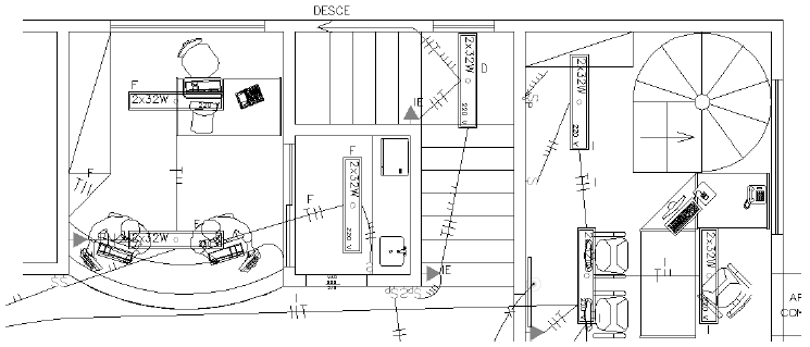
Analise a figura e as afirmativas abaixo e escolha a alternativa correta.

A- A luminária do patamar da escada tem comandos paralelos de acionamento.
B- Existe, pelo projeto, pelo menos uma área inferior onde há instalações elétricas.
C- Pela tubulação que sai da caixinha onde está instalada a luminária do patamar da escada, em direção a uma área de nível inferior, passam 7 cabos.
D- Os circuitos são divididos pela carga dos equipamentos que poderão nele estar ligados e recebem uma codificação para a identificação do mesmo no quadro de disjuntores. O circuito a que pertence a luminária do patamar da escada é o D.
E- As pranchas dos projetos elétricos são normalmente divididas por tipos de circuitos. O trecho do projeto em questão apresenta iluminação e alimentação de computadores.
F- Para a perfeita execução da tubulação embutida, além das informações constantes no trecho de projeto acima, é indispensável que o calculista de elétrica apresente pelo menos dois cortes do prédio: um longitudinal e um transversal.
Provas
Questão presente nas seguintes provas
Cadernos
Caderno Container