Foram encontradas 400 questões.

Em relação à proximidade do SPDA (Sistemas de Proteção contra Descargas Atmosféricas) com instalações, as figuras tratam-se, respectivamente,
Provas
Leia as definições abaixo.
1. Todo aquele composto por vários dispositivos, que o fabricante tenha associado contra um ou mais riscos que possam ocorrer simultaneamente e que sejam suscetíveis de ameaçar a segurança e a saúde no trabalho.
2. Todo dispositivo ou produto, de uso individual utilizado pelo trabalhador, destinado à proteção de riscos suscetíveis de ameaçar a segurança e a saúde no trabalho.
Estas descrições referem-se, respectivamente, a
Provas
Em relação ao combate a incêndio, correlacione as classes de fogo (Coluna A) com seus respectivos materiais (Coluna B) e, em seguida, assinale a alternativa que apresenta a sequência correta.
| COLUNA A |
COLUNA B |
| 1. Classe A. |
( ) Motores, transformadores, quadros de distribuição, fios etc. |
| 2. Classe B. |
( ) Tecidos, madeira, papel, fibra etc. |
| 3. Classe C. |
( ) Óleo, graxas, vernizes, tintas, gasolina etc |
| 4. Classe D. |
( ) Elementos pirofóricos como magnésio, zircônio, titânio. |
Provas
Em relação à segurança na operação de Vasos de Pressão, analise as assertivas abaixo.
I. Todos os instrumentos e controles que interfiram com a segurança do vaso de pressão deverão ser periodicamente calibrados e adequadamente mantidos.
II. A utilização de artifícios, como jumps que neutralizem instrumentos ou sistemas de controle e segurança, será considerada como risco grave e iminente e pode acarretar a interdição do equipamento.
III. A periodicidade de manutenção e a definição de quais instrumentos e controles dos vasos de pressão deverão ser de responsabilidade de profissionais legalmente habilitados para cada especialidade.
É correto o que se afirma em
Provas
A Norma NBR 5410, referente às instalações elétricas de baixa tensão, se aplica
Provas

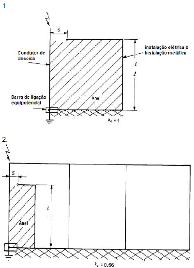
As figuras tratam-se, respectivamente, de
Provas
Leia o trecho abaixo e, em seguida, assinale a alternativa que preenche correta e respectivamente as lacunas.
Os estabelecimentos com carga instalada superior a devem constituir e manter o Prontuário de Instalações Elétricas, contendo, entre outras coisas, da qualificação, habilitação, capacitação, autorização dos trabalhadores e dos treinamentos realizados.
Provas
Em relação ao que pode constituir risco grave e iminente em vasos sob pressão, marque V para verdadeiro ou F para falso e, em seguida, assinale a alternativa que apresenta a sequência correta.
( ) Falta de válvula ou outro dispositivo de segurança com pressão de abertura ajustada em valor igual ou superior à PMTA (Pressão Máxima de Trabalho Admissível), instalada diretamente no vaso ou no sistema que o inclui.
( ) Falta de dispositivo de segurança contra bloqueio inadvertido da válvula quando esta não estiver instalada diretamente no vaso.
( ) Falta de instrumento que indique a pressão de operação.
Provas
Leia o trecho abaixo e, em seguida, assinale a alternativa que preenche correta e respectivamente as lacunas.
Em razão das dimensões envolvidas, a instalação de exige o uso de técnicas sofisticadas e de muita precisão, a fim de limitar as perdas de acoplamento. A junção ponto a ponto de dois ou mais segmentos de pode ser realizada de modo permanente através de ou por meio de de precisão. As junções multiponto utilizam-se de de diversos tipos.
Provas
É composta de nodos (ou “nós”) que podem ser definidos como qualquer dispositivo que se conecta à rede, sendo este tipo de rede a mais indicada para pequenas e médias empresas, em áreas geográficas relativamente pequenas, como um edifício. Já este outro tipo de rede transmite informações por linhas telefônicas, micro-ondas ou satélites, através de uma área geográfica maior, como uma cidade ou país. As duas descrições mencionadas referem-se, respectivamente, a
Provas
Caderno Container