Foram encontradas 790 questões.
Uma fundação é solicitada à carga excêntrica quando esta é submetida a uma força
Provas
Questão presente nas seguintes provas
Os projetos residenciais de Frank Lloyd Wright, entre 1900 e 1917, são conhecidos como Prairie Houses, ou casas-pradaria, porque há integração com a paisagem ao redor de Chicago, com estruturas horizontalizadas baixas, telhados inclinados, silhueta simples e limpa, chaminés disfarçadas, saliências e terraços, utilizando materiais rústicos.

Muitos consideram tais casas como as primeiras a apresentarem o sistema de planta aberta, devido a

Muitos consideram tais casas como as primeiras a apresentarem o sistema de planta aberta, devido a
Provas
Questão presente nas seguintes provas
Nos circuitos que alimentam motores, a capacidade nominal do dispositivo de proteção dos condutores poderá atingir de
Provas
Questão presente nas seguintes provas
Para responder às questões de números 68 a 70, considere as plantas abaixo representadas.

As Fachadas 1 e 2 correspondem, respectivamente, à

Provas
Questão presente nas seguintes provas
- AcessibilidadeErgonomia
- Conforto AmbientalConforto Lumínico
- Planejamento e Controle de ObrasSegurança do Trabalho
Conforme a NBR 5413, para a classe Iluminação geral para área de trabalho, tarefas com requisitos visuais normais, com trabalho médio de maquinaria, os escritórios devem necessariamente ficar com a iluminância entre
Provas
Questão presente nas seguintes provas
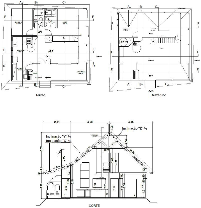
Para responder às questões de números 58 e 59, considere o levantamento lanialtimétrico abaixo representado.

Da análise do levantamento, é INCORRETO concluir:
Provas
Questão presente nas seguintes provas
- AcessibilidadeAcessibilidade e Desenho Universal
- AcessibilidadeCirculações Verticais e Horizontais
- Instalações PrediaisSegurança Contra Incêndio e Pânico
- ProjetosCirculação Vertical
Considere:

Tendo como base as figuras representadas acima, as escadas que atendem às normas do Corpo de Bombeiros, ABNT, NBR 9050/2004, para prédios comerciais, são APENAS:

Tendo como base as figuras representadas acima, as escadas que atendem às normas do Corpo de Bombeiros, ABNT, NBR 9050/2004, para prédios comerciais, são APENAS:
Provas
Questão presente nas seguintes provas
As lajes pré-fabricadas poderão ser consideradas como bidirecionais quando, em sua execução em obra, forem executadas nervuras transversais com intereixos
Provas
Questão presente nas seguintes provas
Conforme a NBR 5681 - NB501, o controle tecnológico é mínimo obrigatório na execução de aterro em qualquer conjunto dos seguintes casos:
Provas
Questão presente nas seguintes provas
Conforme normas do Corpo de Bombeiros, as distâncias máximas a serem percorridas para atingir um local seguro (espaço livre exterior, área de refúgio, escada comum de saída de emergência, protegida ou à prova de fumaça), tendo em vista o risco à vida humana decorrente do fogo e da fumaça, devem considerar:
I. o acréscimo de risco quando a fuga é possível em apenas um sentido.
II. o acréscimo de risco em função das características construtivas da edificação.
III. a redução de risco em caso de proteção por chuveiros automáticos ou detectores.
IV. a redução de risco pela facilidade de saídas em edificações térreas.
É correto o que consta em
I. o acréscimo de risco quando a fuga é possível em apenas um sentido.
II. o acréscimo de risco em função das características construtivas da edificação.
III. a redução de risco em caso de proteção por chuveiros automáticos ou detectores.
IV. a redução de risco pela facilidade de saídas em edificações térreas.
É correto o que consta em
Provas
Questão presente nas seguintes provas
Cadernos
Caderno Container