Magna Concursos

Foram encontradas 60 questões.

1299295 Ano: 2016
Disciplina: Engenharia Civil
Banca: UFRJ
Orgão: UFRJ
De acordo com Gomide et al. (2006), a manutenção predial pode ser definida como “o conjunto de atividades e recursos que garanta o melhor desempenho da edificação para atender às necessidades dos usuários, com confiabilidade e disponibilidade, ao menor custo possível”. Sobre os conceitos que envolvem esse tema, é correto afirmar que:
 

Provas

Questão presente nas seguintes provas
1298838 Ano: 2016
Disciplina: Engenharia Civil
Banca: UFRJ
Orgão: UFRJ
Um mestre de obras precisa construir o meio fio de uma rotatória de raio 5 m e utilizará peças de meio fio pré-moldado, com 49 cm de comprimento e juntas de 1 cm, em média, entre elas. Supondo que não haja desperdício, o número de peças de meio fio necessárias para o trabalho será de:
 

Provas

Questão presente nas seguintes provas
979916 Ano: 2016
Disciplina: Engenharia Civil
Banca: UFRJ
Orgão: UFRJ
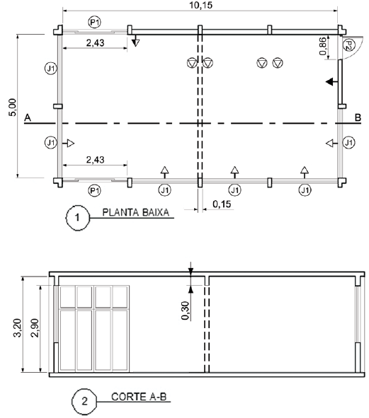
O TEXTO E AS IMAGENS A SEGUIR REFEREM-SE A QUESTÃO ABAIXO.
Um edifício deve ter vida útil longa, em função dos custos elevados de sua construção. Uma forma de se prolongar essa vida é executar reformas e obras de manutenção predial. Considere que a UFRJ fará reforma em uma área, unindo duas salas através da demolição de uma parede, de modo a obter um espaço adequado a um salão de refeições. Considere os desenhos técnicos reproduzidos a seguir:
Enunciado 979916-1
O acabamento entre piso e paredes será em rodapé de mármore. Marque a opção que indica o perímetro de rodapé a ser assentado, sem considerar perdas.
 

Provas

Questão presente nas seguintes provas
979742 Ano: 2016
Disciplina: Engenharia Civil
Banca: UFRJ
Orgão: UFRJ
O TEXTO E AS IMAGENS A SEGUIR REFEREM-SE A QUESTÃO ABAIXO.
Um edifício deve ter vida útil longa, em função dos custos elevados de sua construção. Uma forma de se prolongar essa vida é executar reformas e obras de manutenção predial. Considere que a UFRJ fará reforma em uma área, unindo duas salas através da demolição de uma parede, de modo a obter um espaço adequado a um salão de refeições. Considere os desenhos técnicos reproduzidos a seguir:
Enunciado 979742-1
Assinale a alternativa que apresenta corretamente o número de tomadas de energia elétrica que estão representadas em planta baixa, e a que alturas elas serão instaladas.
 

Provas

Questão presente nas seguintes provas
979723 Ano: 2016
Disciplina: Engenharia Civil
Banca: UFRJ
Orgão: UFRJ
De acordo com Fernandes (2008), o cálculo do consumo de cimento para concretos (em kg de cimento por m³ de concreto), a partir de um traço em massa, pode ser feito pela expressão:
Enunciado 979723-1
Onde: M=Massa (kg); V=Volume (m³); C=Cimento; A=Areia; B=Brita; ρ=Massa específica (kg/m³); a=água.
As massas específicas (massa por unidade de volume) do cimento, da areia e da brita podem ser consideradas:
Enunciado 979723-2
(os valores foram simplificados e não correspondem à realidade). Sabendo que o traço em massa para o concreto da obra em questão é 1:2,5:3 (cimento:areia:brita) e que o fator água/cimento é a/c = 0,50 (litros de água por kg de cimento), o valor do consumo de cimento por m³ de concreto será de, aproximadamente:
 

Provas

Questão presente nas seguintes provas
979099 Ano: 2016
Disciplina: Engenharia Civil
Banca: UFRJ
Orgão: UFRJ
Fazer o nivelamento de pontos de um terreno significa, em topografia, medir as diferenças de altura entre eles. Supondo que um mestre de obras disponha de apenas duas réguas de alumínio de 3 m, alguns piquetes, uma marreta, um nível de pedreiro e uma trena de 5 m, ele consegue fazer o nivelamento de um terreno em aclive (subida). O ponto P é o ponto de partida e fica na cota +10 m em relação a um referencial de nível (RN) localizado no pé da encosta, em um ponto localizado horizontalmente 3 m atrás (à jusante) de P. Após marcar sucessivamente 3 pontos em linha reta, ele chega ao ponto Q, tendo anotado os dados na caderneta abaixo.
PONTO
DISTÂNCIA RELATIVA
HORIZONTAL (m)
COTA
RELATIVA (m)
P 0,00 0,00
1 3,00 +2,10
2 3,00 +2,90
3=Q 2,50 +1,80
Supondo que os dados anotados estejam corretos, pode-se concluir que:
 

Provas

Questão presente nas seguintes provas

Segundo Maria Sylvia Zanella Di Pietro, “Administração Indireta é o conjunto de pessoas jurídicas, de direito público ou privado, criadas por lei, para desempenhar atividades assumidas pelo Estado, seja como serviço público, seja a título de intervenção no domínio econômico”. Assinale a alternativa correta, quanto à Administração Pública Indireta.

 

Provas

Questão presente nas seguintes provas

Jonas, servidor público da UFRJ, cometeu ato de improbidade administrativa e foi demitido mediante processo administrativo disciplinar. Pelo fato de não concordar com a pena de demissão, Jonas contratou um advogado para interpor recurso administrativo a ser analisado pelo Reitor, autoridade competente que proferiu a decisão de demitir o servidor. Entretanto, na ausência do Reitor, a decisão do recurso foi delegada ao Pró-Reitor de Pessoal. De acordo com a Lei nº 9.784/99, que regula o processo administrativo no âmbito da Administração Pública Federal, assinale a alternativa correta quanto ao caso descrito.

 

Provas

Questão presente nas seguintes provas

Vânia é servidora pública federal há dez anos, investida no cargo de Administradora na UFRJ. Com vasta experiência em processos de licitação e contratos, Vânia, representante da Administração Pública, precisa contratar profissional especializado a fim de restaurar as obras de arte e os bens de valor histórico do Museu Nacional da Universidade. Trata-se de um trabalho de natureza singular, com profissional de notória especialização. De acordo com a Lei nº 8.666/93, para essa contratação, a licitação:

 

Provas

Questão presente nas seguintes provas
Sofia é professora da UFRJ e faz parte da Comissão de Ética Pública, instaurada para analisar os casos que envolvem conduta ética no âmbito da Administração e divulgar o Código de Ética Profissional do Servidor Público Civil do Poder Executivo Federal. De acordo com o referido Código, assinale a opção correta quanto às regras deontológicas a serem observadas e divulgadas por Sofia em seu trabalho na Comissão de Ética Pública.
 

Provas

Questão presente nas seguintes provas