Foram encontradas 1.085 questões.
Em procedimentos de ajustagem mecânica é muito comum a utilização de ferramentas manuais como a lima, por exemplo. Em relação ao espaçamento dos dentes de uma lima e, consequentemente, ao acabamento oferecido, é correto concluir que
Provas
Em processos de usinagem, a interpretação de desenhos técnicos é indispensável e, em muitas circunstâncias, há a necessidade de identificar cotas que não estão representadas.
Considere o desenho técnico representado na figura a seguir, e assinale a alternativa que indica os valores corretos das cotas A e B (raio) em milímetros, respectivamente.

(Arquivo pessoal; imagem usada com autorização)
Provas
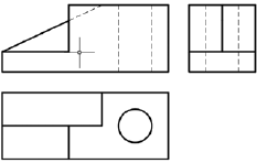
Considere a perspectiva isométrica a seguir, e assinale a única alternativa que representa corretamente suas projeções ortogonais no 3º diedro.

Provas
Considere o enunciado e o trecho retirado de um fluxograma de engenharia, a seguir, para responder à questão a seguir.
Fluxogramas de engenharia são muito importantes em projetos de sistemas mecânicos, sendo utilizados para representar, de forma esquemática, toda a instalação e seu funcionamento, o que facilita a compreensão para montagem e comissionamento uma vez que todas as interligações ficam facilmente visíveis.

Ao interpretar o trecho do fluxograma, o que se pode concluir a respeito dos componentes representados pelos números 8 e 9?
Provas
Considere o enunciado e o trecho retirado de um fluxograma de engenharia, a seguir, para responder à questão a seguir.
Fluxogramas de engenharia são muito importantes em projetos de sistemas mecânicos, sendo utilizados para representar, de forma esquemática, toda a instalação e seu funcionamento, o que facilita a compreensão para montagem e comissionamento uma vez que todas as interligações ficam facilmente visíveis.

Analisando o fluxograma, assinale a única alternativa que identifica corretamente todos os componentes (equipamentos, dispositivos e acessórios) indicados com os números do 1 ao 7.
Provas
O comissionamento é uma etapa importante que deve ser realizada após o término da instalação de um sistema, por exemplo. A ABNT NBR 16315:2014 estabelece requisitos para a realização de procedimentos de instalação e comissionamento de máquinas como testes funcionais.
Assinale a alternativa que considera apenas testes funcionais a serem realizados durante o comissionamento.
Provas
O planejamento da manutenção é essencial para garantir que sistemas mecânicos operem regularmente sem interrupções indesejadas e com menor impacto possível nos custos de produção.
Durante a operação, o compressor principal, que alimenta uma rede de ar comprimido para um hospital, sofreu uma quebra inesperada enquanto o compressor reserva aguardava peças para substituição de rolamentos do motor elétrico devido ruído excessivo que foi identificado antes de sofrer avarias mais graves, o que provocou interrupção total do fornecimento de ar comprimido para todo o empreendimento.
Em relação aos tipos de manutenção, é possível concluir que
Provas
Dominar unidades de medida de variáveis aplicadas em processos mecânicos e suas conversões é fundamental para possibilitar um bom desempenho em projetos.
Sabe-se que a pressão interna de um cilindro que contém oxigênio para uso hospitalar é medida a partir de um manômetro de bourdon, e que registra o valor de 15 kgf/cm2.
Considerando que uma ficha de manutenção necessita do registro dessa informação em kPa, qual será o resultado da conversão?
Dados: Considerar 1kgf = 10 N.
Provas
Em uma instalação, utiliza-se um medidor de vazão do tipo Tubo Venturi para controlar os fluxos de um fluido de processo. Um sinal analógico é gerado e enviado a um controlador lógico programável (CLP) que o interpreta e controla o fluxo por meio de uma válvula motorizada conforme a demanda.
Sobre o princípio de funcionamento desse conjunto de medição de vazão com Tubo Venturi, é correto afirmar que
Provas
Válvulas solenoide são comumente aplicadas para automatizar processos, seja em grandes sistemas ou até mesmo em equipamentos de pequeno porte. Sobre a função e o princípio de funcionamento, é correto afirmar que válvulas solenoides de duas vias
Provas
Caderno Container