Foram encontradas 721 questões.
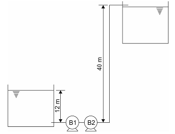
Em um edifício foram instaladas duas bombas iguais ligadas em série como ilustrado na figura abaixo.

O sistema deve recalcar 0,01 m3/s do reservatório inferior para o superior. A perda de carga total no sistema é de 14 m. Como o rendimento das bombas é de 80%, a potência de cada bomba é, em CV,
Provas
Questão presente nas seguintes provas
Uma viga de madeira, simplesmente apoiada, submetida a uma carga distribuída acidental de longa duração, será utilizada em
ambiente de classe 2 de umidade. As tensões médias de compressão e de tração paralelas às fibras referidas ao teor de
umidade de 12% são, respectivamente, 40 MPa e 100 MPa e o coeficiente de modificação kmod = kmod1 x kmod2 x kmod3= 0,54. As tensões resistentes de projeto paralelas às fibras de compressão e de tração, em MPa, são, respectivamente,
Provas
Questão presente nas seguintes provas
Para o projeto e dimensionamento das peças de estruturas de aço de edifícios, o coeficiente de ponderação das resistências
utilizado para a verificação das peças metálicas no estado-limite de serviço é
Provas
Questão presente nas seguintes provas
Segundo a Lei n° 7.804/1989, que altera a Lei n° 9.433/1997, que dispõe sobre a Política Nacional do Meio Ambiente, o poluidor
que expuser a perigo a incolumidade humana, animal ou vegetal, ou estiver tornando mais grave a situação de perigo existente,
fica sujeito à pena de reclusão de
Provas
Questão presente nas seguintes provas
No dimensionamento de estruturas metálicas no estado limite último, os coeficientes de segurança parciais aplicados para as
combinações normais das ações permanentes de pesos próprios das estruturas metálicas e das estruturas pré-moldadas são,
respectivamente,
Provas
Questão presente nas seguintes provas
Após a execução da impermeabilização, recomenda-se realizar ensaio de estanqueidade com água limpa, para verificação de
falhas na execução do tipo de impermeabilização utilizado, com duração mínima de
Provas
Questão presente nas seguintes provas
No projeto e execução de sistemas prediais de esgoto sanitário de um edifício, a tubulação de ventilação, com comprimento de
10 m, deve ser instalada em aclive, em uma laje. A diferença mínima de cotas entre o ponto a jusante e a montante é, em
centímetros,
Provas
Questão presente nas seguintes provas
Durante a realização de sondagem de simples reconhecimento do subsolo de um terreno com SPT (Standard Penetration
Test − Ensaio de Penetração Padrão) o tubo de revestimento deve ficar a uma distância de, no mínimo, X cm do fundo do furo,
quando da operação de ensaio e amostragem. Somente em casos de fluência do solo para o interior do furo, deve ser admitido
deixá-lo à mesma profundidade do fundo do furo. O valor de X, em centímetros, é
Provas
Questão presente nas seguintes provas
Nos projetos de pavimentação, para identificação das diversas camadas de solo, pela inspeção expedita no campo, são feitas
sondagens no eixo e nos bordos da estrada, devendo estas, de preferência, serem executadas a X m do eixo. O espaçamento
máximo, entre dois furos de sondagem no sentido longitudinal, é de Y m a Z m, tanto em corte como em aterro, devendo reduzir-se,
no caso de grande variação de tipos de solos. Os valores de X, Y e Z, são, respectivamente, em metros,
Provas
Questão presente nas seguintes provas
Considere o projeto de estaqueamento para o pilar 1-A e os dados abaixo:

Sobre o estaqueamento do pilar 1-A, considerando o recalque estrutural admissível de 15 mm, a carga admissível é
Provas
Questão presente nas seguintes provas
Cadernos
Caderno Container