Magna Concursos

Foram encontradas 60 questões.

A língua portuguesa, por ser uma língua natural, está sujeita a uma variedade de fenômenos linguísticos que caracterizam as identidades socioculturais dos povos que as falam. Diante disso, é correto afirmar que o português do Brasil
 

Provas

Questão presente nas seguintes provas
1389966 Ano: 2013
Disciplina: Engenharia Civil
Banca: UFMS
Orgão: IF-MS
Provas:
A cura do concreto é uma série de procedimentos adotados para controlar a hidratação do cimento, evitando, com isso, que o concreto perca água para o ambiente e retraia abruptamente. Em relação à cura do concreto, considere:
I. Deverá ser iniciada imediatamente após o endurecimento superficial.
II. Deve-se manter a superfície do concreto seca durante o processo de cura úmida.
III. A permeabilidade, a carbonatação e o aparecimento de fissuras, são algumas características superficiais que podem surgir devido a uma cura inadequada.
IV. A cura térmica consiste em aspergir um produto que forma uma película protetora na superfície do concreto, cuja função é impedir que haja evaporação da água do concreto.
Estão corretas apenas as afirmações:
 

Provas

Questão presente nas seguintes provas
1389886 Ano: 2013
Disciplina: Engenharia Civil
Banca: UFMS
Orgão: IF-MS
Provas:
A figura abaixo mostra uma viga de comprimento 6m, engastada em “A” e articulada em “B”. A viga está submetida a um carregamento uniformemente distribuído no valor de 10kN/m. Os valores das reações de apoio são respectivamente:
Enunciado 1389886-1
 

Provas

Questão presente nas seguintes provas
1388621 Ano: 2013
Disciplina: Engenharia Civil
Banca: UFMS
Orgão: IF-MS
Provas:
NÃO pode ser considerado um sistema de distribuição predial:
 

Provas

Questão presente nas seguintes provas
Conforme a lei n. 8.112/90, são deveres dos servidores, EXCETO:
 

Provas

Questão presente nas seguintes provas
Sobre licitações na Administração Pública, previstas na Lei n. 8.666/93, a tomada de preço é uma modalidade
 

Provas

Questão presente nas seguintes provas
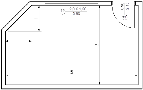
1386437 Ano: 2013
Disciplina: Engenharia Civil
Banca: UFMS
Orgão: IF-MS
Provas:
A figura representa uma planta baixa de uma sala. O teto será rebaixado com forro de madeira com peças de 0,10 m de largura útil, colocadas perpendicularmente a maior dimensão. O rodapé será de madeira e executado somente na face interna da parede.
Enunciado 1386437-1
Sem considerar quaisquer perdas ou acréscimos, a quantidade total de forro de madeira, em metros, e a quantidade de rodapé, em metros, que devem ser adquiridos, respectivamente, são:
 

Provas

Questão presente nas seguintes provas

Analise as afirmativas abaixo segundo a Constituição Federal de 1988 e a seguir assinale a alternativa correta.

I. Os cargos, empregos e funções públicas são acessíveis apenas aos brasileiros natos ou naturalizados.

II. Na proibição de acumulação de cargos públicos, excluem-se os empregos e funções das autarquias, fundações, empresas públicas, sociedades de economia mista, suas subsidiárias e sociedades controladas, direta ou indiretamente, pelo poder público.

III. A administração pública direta e indireta de qualquer dos Poderes da União, dos Estados, do Distrito Federal e dos Municípios obedecerá aos princípios de legalidade, impessoalidade, moralidade, publicidade e economia.

IV. O servidor público estável só perderá o cargo em virtude de sentença judicial transitada em julgado; mediante processo administrativo em que lhe seja assegurada ampla defesa; e mediante procedimento de avaliação periódica de desempenho, na forma de lei complementar, assegurada ampla defesa.

 

Provas

Questão presente nas seguintes provas
Leia o texto que segue, escrito por Julia Michaels, retirado do sítio www.revistagalileu.globo.com, em 18/09/2013. Em seguida, responda à questão.
Nossa nova língua portuguesa
Logo que comecei a trabalhar como editora, reparei que a diferença entre a língua falada e a língua escrita é maior em português do que em inglês, meu idioma nativo. Um estrangeiro pode passar anos sem topar com uma ênclise. De repente, abre um livro e paft! As pessoas não se sentam; sentam-se. Uma porta não se fecha; fecha-se. O ex-presidente Jânio Quadros uma vez falou "fi-lo porque qui-lo". Tradução: fiz porque quis - e foi por causa da ênclise falada que a frase entrou na história. Enquanto os vizinhos hispânicos mantêm seus verbos reflexivos falados certinhos, os brasileiros ao falar deixam cair toda espécie de pronome. Escrever, porém, trata-se de outra história. É quase como se fosse um outro idioma.
O português é muito mais aberto do que línguas como o espanhol e o francês. Não existe aqui um forte sentimento nacional pela preservação linguística. Enquanto em espanhol se utiliza Sida, aqui se fala de Aids, a sigla em inglês. Outro dia li "bêbado como um gambá" numa tradução e corri para ver como estava a frase no inglês original, pensando que o tradutor a tivesse erroneamente traduzido ao pé da letra, pois existe a expressão "drunk as a skunk". Mas essa aliteração, que nada tem a ver com o comportamento do fedorento animal, não estava no texto original! Concluí que a expressão deve ser um empréstimo que veio há tempos de minha terra natal, talvez por meio de algum filme.
Neste momento histórico de globalização e acesso máximo à informação, as pessoas no mundo inteiro prezam acima de tudo a comunicação, de maneira eficiente. Daí surgem as abreviações-gíria como "vc" (você) "rs" (risos), "pq" (por que) e "tranks" (tranquilo). No meu trabalho, vejo o impacto da crescente massificação da comunicação escrita. Os livros que chegam aqui dos EUA estão escritos cada vez mais como se o autor estivesse falando em voz alta com seus leitores: "Tenho certeza de que a esta altura você está se perguntando...", para ficar em apenas um exemplo. Até os franceses, tão mais formais no trato do que os brasileiros, estão mudando. No seu novo livro sobre as ligações entre a mitologia grega e o desenvolvimento pessoal, o filósofo Luc Ferry utiliza o "tu", e não o "vous", quando dirige a palavra àquele que vira as páginas.
Em português, esse tipo de abordagem soa muito crua. Fica difícil saber se é melhor escrever "como eu te disse há pouco", "como eu lhe disse há pouco" ou "como eu disse há pouco".
Alguns podem pensar que é o inglês que está influenciando as estruturas do português escrito, tornando-o (ih!) mais fácil para ler, mas eu discordo. Sim, foram meus compatriotas os pioneiros na democratização de linguagem, séculos atrás. Um dos fundadores do Estado americano, Benjamin Franklin, até escreveu um livro de ditados populares (foi ele quem observou que, no caso de peixes e hóspedes, ambos fedem em três dias). Mas a meu ver é a própria democratização brasileira que leva à abertura linguística. Ao passo que as pessoas sobem na pirâmide política, social e econômica do País, precisamos e procuramos maior acessibilidade ao mundo da palavra escrita.
Quem produz e vende livros quer comercializar o maior número possível deles, e não restringir a leitura aos poucos eruditos, que, como o Jânio, poderiam explicar seus hábitos assim: "Bebo porque é líquido. Se fosse sólido, comê-lo-ia". Hoje o público tem mais a cara da minha podóloga, que acaba de comprar uma casa pela Caixa Econômica: "Quero ler um livro que minha filha está lendo; não consigo pronunciar direito o nome. É algo assim: Cre-pús-cu-lo".
Com base no texto, é correto afirmar que na opinião da autora
 

Provas

Questão presente nas seguintes provas
Uma indústria fabrica dois tipos de modelo de geladeira: simplex e luxo. A demanda mensal do mercado é de até 500 geladeiras do modelo luxo e até 800 geladeiras do simplex. Cada geladeira do modelo simplex consome 4 homens/hora para fabricação, enquanto que cada geladeira do modelo luxo consome 12 homens/hora. A indústria possui apenas 720 homens/hora disponíveis por mês. Sabe-se que cada geladeira do modelo luxo gera lucro de R$ 200,00 enquanto que cada geladeira do modelo simplex gera lucro de R$ 150,00.
Assim, é correto afirmar que o lucro máximo da empresa é de:
 

Provas

Questão presente nas seguintes provas