Foram encontradas 489 questões.
De acordo com a Política Nacional de Resíduos Sólidos, são planos de resíduos sólidos:
Provas
Questão presente nas seguintes provas
Com relação aos requisitos de segurança para construção e instalação de elevadores elétricos de passageiros, exigidos pela Norma Brasileira, é correto afirmar:
Provas
Questão presente nas seguintes provas
São tributos incidentes sobre o lucro em empreendimentos de engenharia:
Provas
Questão presente nas seguintes provas
Em um projeto de sistema viário onde as curvas de nível estão representadas de metro em metro, uma via possui comprimento de 60 metros e a distância horizontal entre curvas é uniforme e mede 8 metros. Portanto, a declividade desta via é de
Provas
Questão presente nas seguintes provas
Com relação ao planejamento e controle de obras, é correto afirmar:
Provas
Questão presente nas seguintes provas
Uma determinada obra dispõe de três pedreiros para a execução da tarefa alvenaria. A quantidade de alvenaria a executar é de 180 m2, a produtividade do pedreiro é de 1,5 m2/h e a jornada de trabalho de 8h/dia. Caso fosse reduzida a disponibilidade de três para dois pedreiros, mantidas as demais condições, o prazo para a execução da tarefa alvenaria seria ajustado em
Provas
Questão presente nas seguintes provas
Em um cronograma de trabalho, são exemplos de marcos de planejamento e marcos contratuais, respectivamente:
Provas
Questão presente nas seguintes provas
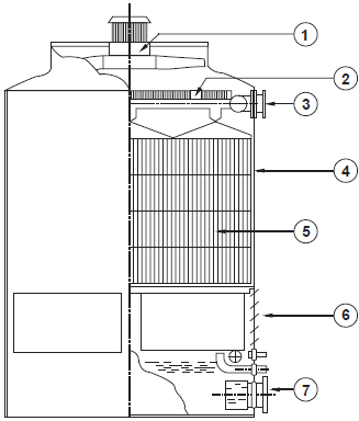
A figura abaixo ilustra os componentes principais de uma torre de resfriamento para instalação de ar condicionado.

Correspondem a entrada de água, motor-ventilador, eliminadores de gotas e saída de água, respectivamente, os números
Provas
Questão presente nas seguintes provas
São medidas passivas e medidas ativas de segurança contra incêndio, respectivamente:
Provas
Questão presente nas seguintes provas
Segundo a Norma Brasileira para instalações elétricas de baixa tensão − NBR 5410:2004, em relação aos eletrodos de aterramento de uma edificação, é correto afirmar:
Provas
Questão presente nas seguintes provas
Cadernos
Caderno Container