Foram encontradas 550 questões.
Segundo a Norma Brasileira para Avaliação de custos unitários de construção para incorporação imobiliária e outras disposições
para condomínios edifícios − Procedimento, com relação à revisão de estimativa de custo da obra, deve-se:
Provas
Questão presente nas seguintes provas
Considere o detalhe abaixo, em corte, da Biblioteca Central da PUC-Campinas.

É possível observar neste trecho que
Provas
Questão presente nas seguintes provas
A resolução que dispõe sobre os Direitos Autorais na Arquitetura e Urbanismo, considera, para seus fins, plágio nessas disciplinas,
a reprodução de, pelo menos, dois dos seguintes atributos do projeto ou obra dele resultante:
Provas
Questão presente nas seguintes provas
Conforme o Plano Diretor Estratégico de Campinas (2018), corresponde a uma das diretrizes dos parques lineares:
Provas
Questão presente nas seguintes provas
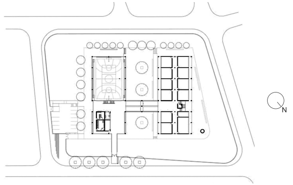
Considere o desenho abaixo, representando uma planta da Escola Estadual Parque São Bento, na Zona Oeste de Campinas.

O partido adotado, de separar o conjunto em dois edifícios, permitiu a
Provas
Questão presente nas seguintes provas
A existência e a vigência de ata de registro de preços decorrente de licitação levada a efeito por um ente político
Provas
Questão presente nas seguintes provas
- Atos AdministrativosAtributos, Características e Prerrogativas
- Atos AdministrativosElementos, Requisitos e Pressupostos
São imprescindíveis ao ato administrativo, dentre seus elementos e atributos,
Provas
Questão presente nas seguintes provas
A utilização de um terreno público pela iniciativa privada para construção de um espaço destinado a atividades de lazer e cultura para a população, mediante cobrança de valores razoáveis dos usuários, compatibilizando a política pública de disponibilização dessas atividades com a finalidade de percebimento de receitas pelo utente do terreno, pode se dar
Provas
Questão presente nas seguintes provas
Um servidor da Administração direta federal foi convidado para ocupar cargo em comissão na Administração indireta estadual, como superintendente da autarquia responsável por ditar a política ambiental, inclusive realizar os licenciamentos naquela unidade federativa. O ente interessado na cessão do servidor formalizou o pedido e o servidor apresentou a seu superior pedido de afastamento, que
Provas
Questão presente nas seguintes provas
- Agentes PúblicosCargos, Empregos e Funções PúblicasAcessoConcurso Público
- Agentes PúblicosCargos, Empregos e Funções PúblicasFormas de Provimento
- Lei 8.112/1990: RJU
É característica comum aos servidores ocupantes de cargos públicos efetivos e de empregos públicos:
Provas
Questão presente nas seguintes provas
Cadernos
Caderno Container